Compact, airy apartment ideal for first-time buyers or central city investors.
Second-floor one-bedroom with tall windows and high ceilings
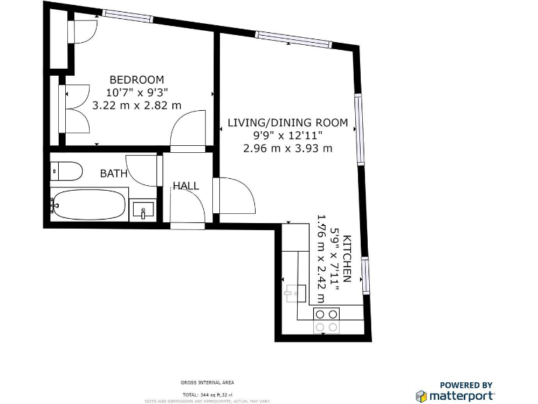
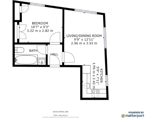
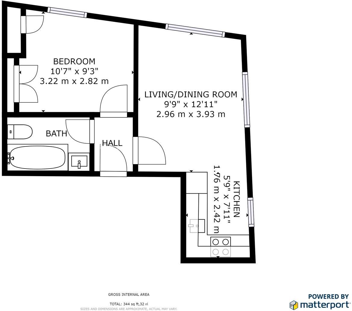
Set in a historic period conversion moments from St Paul’s, this compact one-bedroom apartment makes city living easy. Tall windows and high ceilings create an airy feel despite the modest footprint, while a fitted kitchen and re-fitted bathroom mean the flat is move-in ready for a single occupant or couple.
Practical strengths include an exceptionally long lease (approximately 975 years), excellent mobile and fast broadband, and a central transport hub with multiple Underground and Elizabeth Line connections within walking distance. Local shops, supermarkets and cultural attractions are all very close, supporting a low-car, convenience lifestyle.
Buyers should factor in the small overall size (about 344 sq ft), a relatively high service charge (around £2,636 pa) plus separate building insurance, and Council Tax at Band E. The area records very high crime levels — a material consideration for personal security and insurance — and heating is via a community mains-gas scheme rather than individual central heating.
This apartment suits a first-time buyer seeking a well-located city base or an investor wanting a central-let opportunity. It offers straightforward, low-renovation accommodation with strong transport and amenity access, balanced by clear running costs and modest living space.
1 bedroom apartment for sale in The Gallery, 38 Ludgate Hill, London, EC4M — £550,000 • 1 bed • 1 bath • 560 ft²
1 bedroom apartment for sale in 38 Ludgate Hill, EC4M — £550,000 • 1 bed • 1 bath • 532 ft²
1 bedroom apartment for sale in 46- 48 Carter Lane, London, EC4V — £390,000 • 1 bed • 1 bath • 402 ft²
2 bedroom apartment for sale in Amen Lodge, City Of London EC4M — £900,000 • 2 bed • 1 bath • 993 ft²
1 bedroom apartment for sale in The Gallery, Ludgate Hill, EC4M — £550,000 • 1 bed • 1 bath • 574 ft²
1 bedroom apartment for sale in Hosier Lane, London, EC1A — £575,000 • 1 bed • 1 bath • 640 ft²










































