Spacious garden, garage and great local schools — ideal for growing families..
- Four-bedroom detached home on Oakley Vale
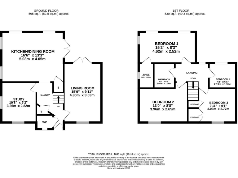
- Kitchen/dining with island and integrated appliances
- Master bedroom with en-suite shower room
- Large rear garden with lawn and paved patio
- Single garage plus off-road parking
- Freehold, fast broadband, low local crime
- Approx 1,096 sq ft — modest internal space for four beds
- Near good schools, parks and Corby town centre
Set on a decent corner plot in the popular Oakley Vale development, this four-bedroom detached home is arranged over two storeys and suits growing families seeking easy access to good schools and local amenities. The ground floor offers a generous kitchen/dining area with integrated appliances and a central island, a living room with garden access, and a versatile study/playroom. Upstairs, the master bedroom benefits from an en-suite and three further bedrooms share a family bathroom.
Practical features include a single garage and off-road parking, a large rear garden laid to lawn with a paved patio area, freehold tenure, fast broadband and low local crime. The property sits within a very affluent, achieving neighbourhood and is close to well-rated primary and secondary schools, parks and a medical centre; Corby town centre and the train station are only a short drive away.
Buyers should note the stated total floor area is approximately 1,096 sq ft, which is modest for a four-bedroom home and may limit internal space planning. The house presents well but offers scope for personalization or extension (subject to planning) if more living area is required. There is no flood risk recorded.
This home will appeal most to families who prioritise school catchments, outdoor space and off-street parking, and who are comfortable working within the existing footprint or investing in modest refurbishment to suit long-term needs.
4 bedroom detached house for sale in Sandringham Walk, Corby, NN18 — £323,000 • 4 bed • 2 bath • 970 ft²
4 bedroom detached house for sale in Blackbird Road, Corby, NN18 — £375,000 • 4 bed • 2 bath • 1200 ft²
4 bedroom detached house for sale in Denne Close, Corby, NN18 — £340,000 • 4 bed • 2 bath • 872 ft²
4 bedroom detached house for sale in Kempton Close, Corby, NN18 — £350,000 • 4 bed • 2 bath • 1119 ft²
4 bedroom detached house for sale in Nuthatch Close, Corby, NN18 — £325,000 • 4 bed • 3 bath • 1389 ft²
4 bedroom detached house for sale in Fakenham Road, Corby, NN18 — £385,000 • 4 bed • 2 bath • 1411 ft²


















































































