L17 7BL - 3 bedroom terraced house for sale in Sunbourne Road, Aigbur…

View on Property Piper

3 bedroom terraced house for sale in Sunbourne Road, Aigburth, Liverpool, L17

Summary - Sunbourne Road, Aigburth, Liverpool, L17 L17 7BL

3 bed 1 bath Terraced

**Property Highlights:**
- Three spacious bedrooms
- Located in highly sought-after Aigburth, L17
- Generous living space with plenty of natural light
- Exciting refurbishment opportunity with potential for modernization
- Bay-fronted lounge plus an additional reception room
- Low-maintenance enclosed rear yard
- Freehold tenure with affordable council tax
- Smart investment for families or first-time buyers

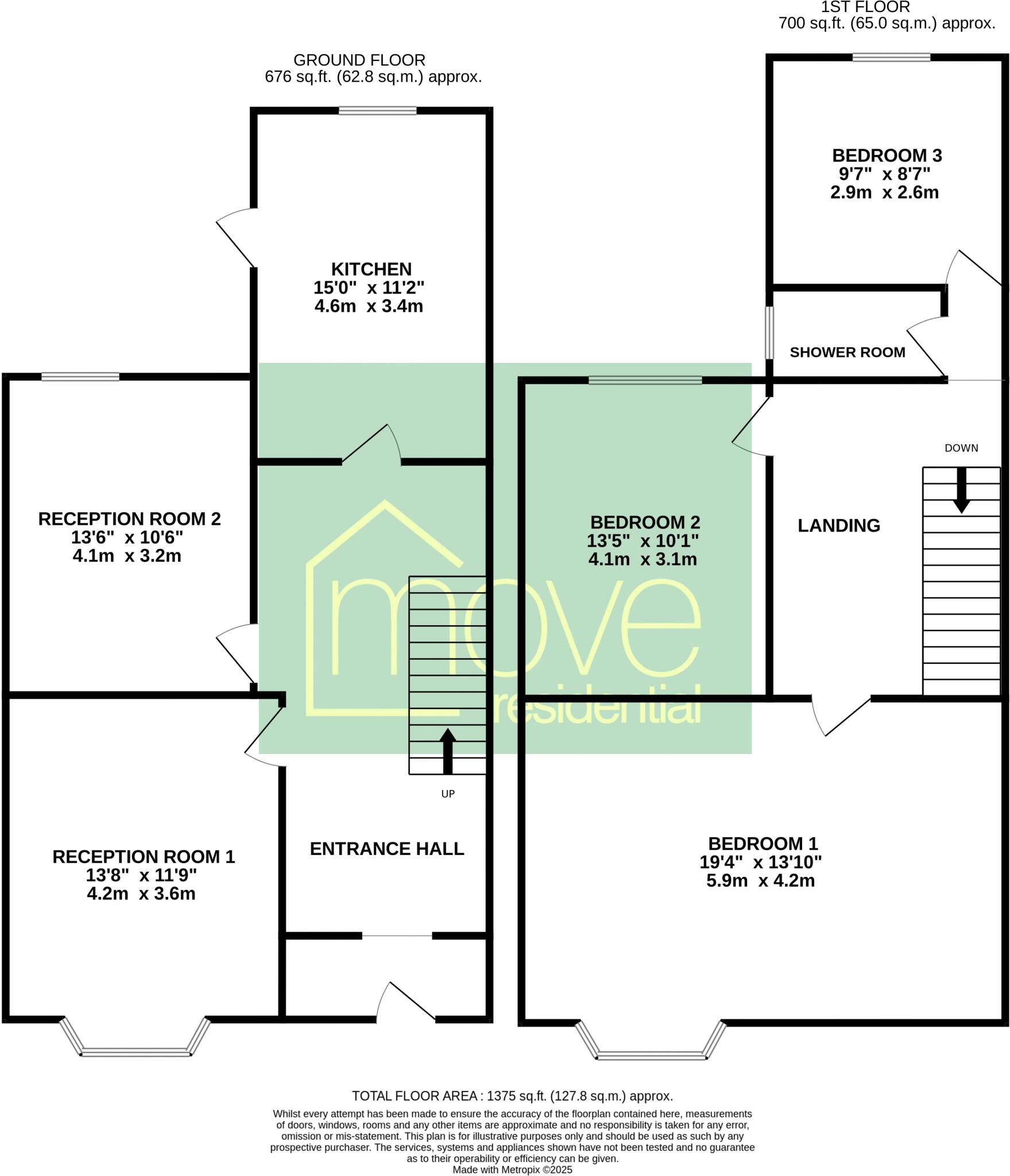
This promising three-bedroom mid-terrace home in Aigburth offers an impressive 1,375 square feet of living space, making it an ideal starting point for families or savvy investors looking to create their dream home. The property retains a wealth of character, featuring a charming bay-fronted lounge that floods the space with natural light and a welcoming fireplace to cozy up to. With a second bright reception room and a kitchen ripe for renovation, the layout is practical and generously proportioned for everyday family life.

Upstairs, discover a large master bedroom across the full width of the property, alongside two additional well-lit bathrooms, including a convenient wet room. The exterior presents a low-maintenance rear yard, perfect for crafting a tranquil outdoor retreat. While the home requires modernization to bring it up to contemporary standards, its prime location near excellent schools and amenities enhances its value. Act quickly—properties in Aigburth are in high demand, and this gem is a unique opportunity to invest in your future!

Property Details

Brochure Descriptions

Image Descriptions

Floorplan Description

Rooms

Textual Property Features

Detected Visual Features

Nearby Schools

Nearest Bars And Restaurants

,,,,}

Nearest General Shops

,,}

Nearest Grocery shops

,,}

Nearest Supermarkets

,,}

Nearest Religious buildings

,,}

Nearest Medical buildings

,,,}

Nearest Airports

}

Nearest Leisure Facilities

,,,,}

Nearest Tourist attractions

,,}

Nearest Train stations

,,,,}

Nearest Bus stations and stops

,,,,}

Nearest Hotels

,,}

Tags

Local Market Stats

AirBnB Data

Similar Properties

Meta

High Res Images

Compatible Images

Low res Images

Thumbnails

Raw Images

High Res Floorplan Images

Compatible Floorplan Images

Low res Floorplan Images

FloorplanImages Thumbnail

Raw Floorplan Images