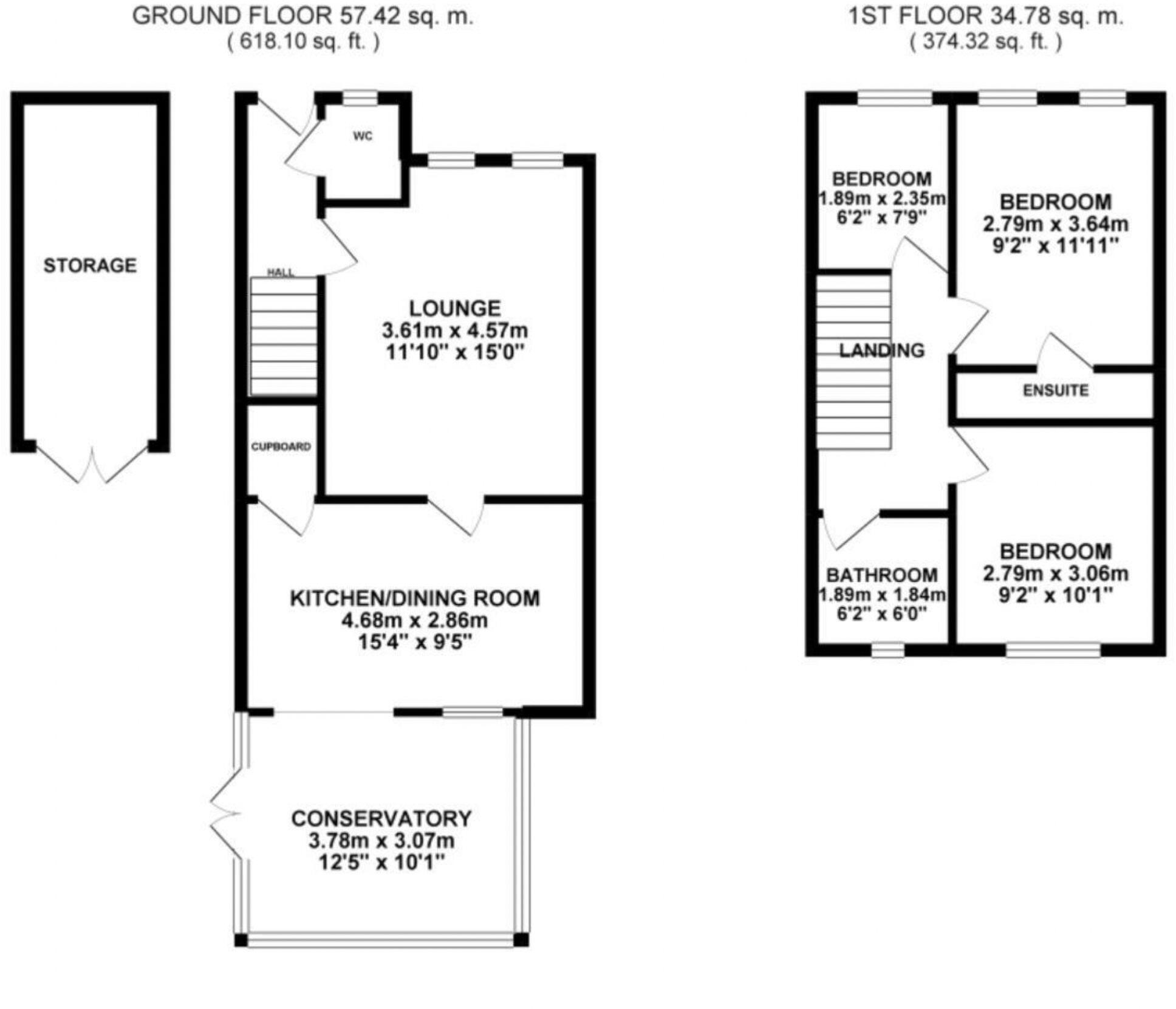
**Standout Features:**
- 3 bedrooms, 3 bathrooms including an ensuite
- Spacious living room with media wall
- Modern kitchen with integrated appliances
- Conservatory dining area opening to the garden
- Self-contained garden room, ideal for office or gym
- Private garden with canal access and views
- Convenient off-street driveway parking
- Low crime rate area with good schools and amenities nearby
Nestled in the serene locality of Litherland, this inviting end-of-terrace home boasts canal access and modern comforts, perfect for families or first-time buyers seeking a blend of relaxation and connectivity. The spacious living room, accentuated by a stylish media wall, complements a contemporary kitchen complete with integrated appliances, making it ideal for home chefs and gatherings. The conservatory dining area flows effortlessly into a private garden space – a tranquil spot for entertaining or unwinding while enjoying the scenic views of the canal.
Upstairs, you'll find three well-sized bedrooms, including a master suite with its own modern ensuite bathroom, alongside a stylish family bathroom. The added convenience of a downstairs WC and a self-contained garden room offers fantastic potential for a home office, gym, or guest space. With off-street parking, low crime rates, and proximity to well-rated schools and essential amenities, this home combines comfort and functionality. An EPC rating of C underscores its energy efficiency. Don’t miss out on this unique opportunity to secure a peaceful retreat with modern touches and future renovation potential.



























































































































