**Standout Features:**
- Stylish top floor flat in a period property
- Central location in Hornsea with views over Memorial Gardens
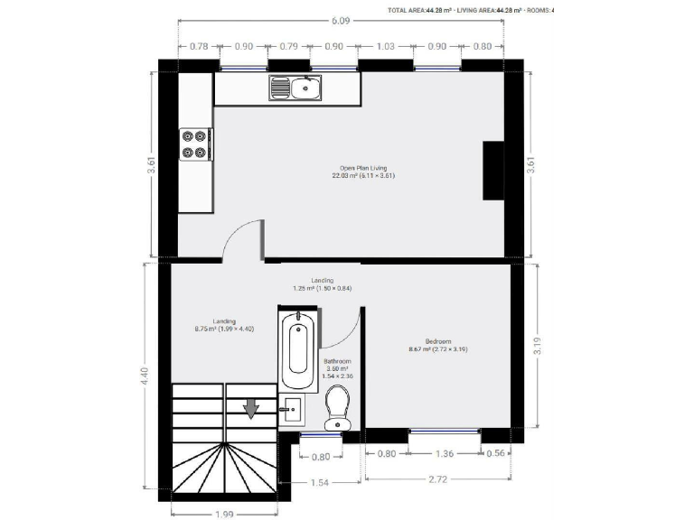
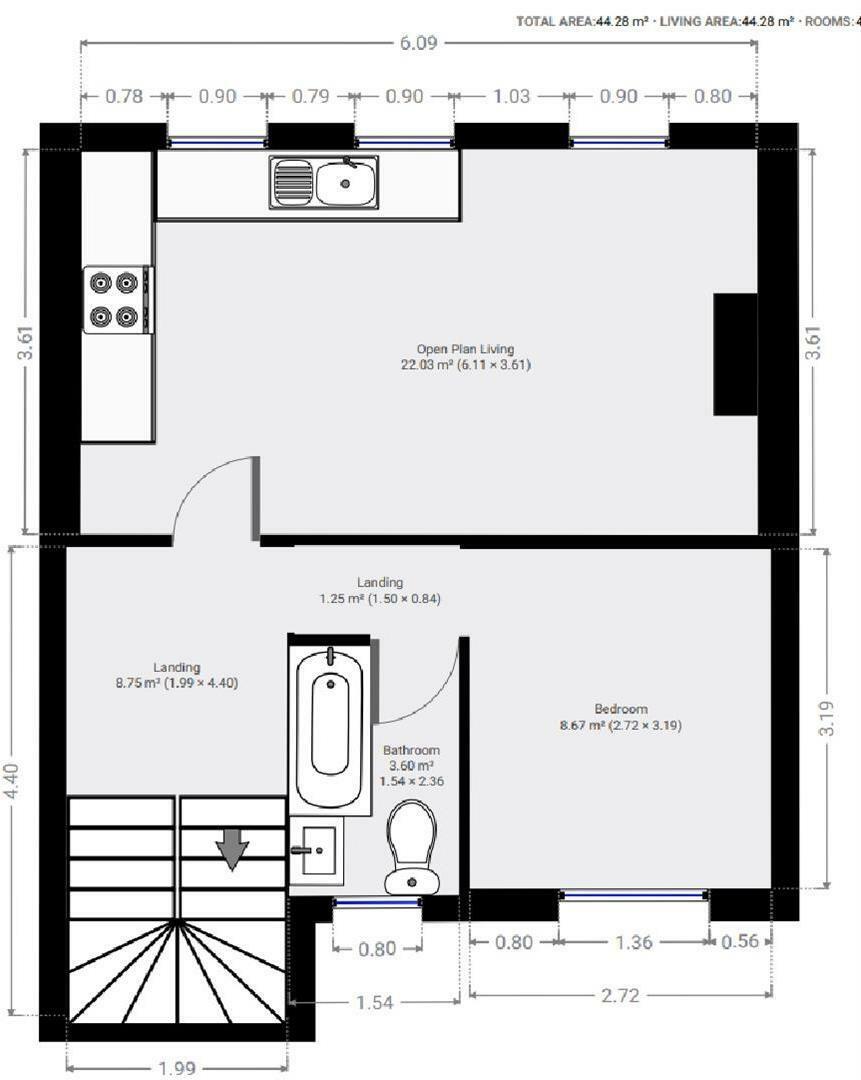
- Open plan breakfast kitchen and living area
- Double bedroom with ample natural light
- Bathroom featuring a luxurious Jacuzzi bath
- Communal terrace with colorful planting
- Residential letting allowed, providing rental potential
- Chain-free and ready for immediate occupancy
**Potential Downsides:**
- No heating/hot-water system present; likely requires electric heaters
- Flat cannot be used for commercial holiday letting
- Council Tax Band A; very economical but may reflect area deprivation
This charming one-bedroom flat in the heart of Hornsea is perfect for first-time buyers, those seeking a holiday retreat, or savvy investors looking for a rental opportunity. Enjoy the benefits of a stylish open-plan layout that seamlessly connects the modern kitchen to the living area, all while basking in delightful views over the nearby Memorial Gardens. The double bedroom is filled with natural light, and the bathroom boasts a soothing Jacuzzi bath for a touch of luxury.
Step outside to a well-maintained communal terrace, ideal for relaxing or enjoying your morning coffee amidst vibrant plantings. With the beach and town center just a short stroll away, this property combines comfort and convenience. Although there's a need for an electric heating system and it cannot be utilized for commercial holiday letting, the appealing location and potential for residential rental make this flat a standout choice. Schedule a viewing today—opportunities like this don’t last long!
1 bedroom flat for sale in New Road, Hornsea, HU18 — £105,000 • 1 bed • 1 bath • 523 ft²
1 bedroom flat for sale in Eastbourne Road, Hornsea, HU18 — £65,000 • 1 bed • 1 bath • 376 ft²
1 bedroom flat for sale in Cliff Road, Hornsea, HU18 — £110,000 • 1 bed • 1 bath • 492 ft²
2 bedroom flat for sale in Station Court, Hornsea, HU18 — £125,000 • 2 bed • 1 bath • 661 ft²
2 bedroom flat for sale in Headland View, Hornsea, HU18 — £155,000 • 2 bed • 1 bath • 770 ft²
2 bedroom terraced house for sale in Mount Pleasant, Hornsea, HU18 — £110,000 • 2 bed • 1 bath • 759 ft²






























































