Immaculate four-bedroom townhouse with garden, driveway and EPC C—ideal for first-time buyers.
Four bedrooms including master with en-suite and built-in storage
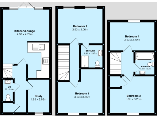
This modern four-bedroom end-terrace townhouse offers a practical, energy-efficient home for first-time buyers seeking space and value. Built c.2007–2011, the property benefits from double glazing, an EPC C rating and mains gas central heating, keeping running costs reasonable.
Accommodation includes a master bedroom with en-suite, two further double bedrooms and a smaller fourth bedroom suitable for a nursery or home office. The bright open-plan kitchen and reception room open onto a private garden, while off‑street driveway parking adds day-to-day convenience.
Buyers should note material considerations: the property is leasehold (length and charges not specified), the local area experiences high crime and significant deprivation, and the small overall footprint (approx. 896 sq ft) means compact living compared with larger family homes. External areas show some poor maintenance and will need landscaping and minor external works.
For first-time purchasers this house presents affordable council tax, fast broadband and excellent mobile signal, plus good nearby schools and public transport links. The combination of modern construction, private outside space and parking makes it a practical step onto the property ladder, but purchasers should verify lease details and consider security and external maintenance costs.
4 bedroom town house for sale in 157 Shard End Crescent, Birmingham, West Midlands, B34 — £260,000 • 4 bed • 2 bath • 1131 ft²
4 bedroom town house for sale in Canal Court, Acocks Green, B27 — £265,000 • 4 bed • 2 bath • 1042 ft²
4 bedroom terraced house for sale in Barrett Street, Smethwick, B66 — £350,000 • 4 bed • 3 bath • 1034 ft²
4 bedroom terraced house for sale in Mulwych Road, BIRMINGHAM, West Midlands, B33 — £245,000 • 4 bed • 1 bath • 959 ft²
4 bedroom terraced house for sale in First Meadow Piece, Quinton, Birmingham, B32 — £235,000 • 4 bed • 1 bath • 871 ft²
4 bedroom town house for sale in Shustoke Road, Birmingham, B34 — £250,000 • 4 bed • 2 bath • 800 ft²






















































































































