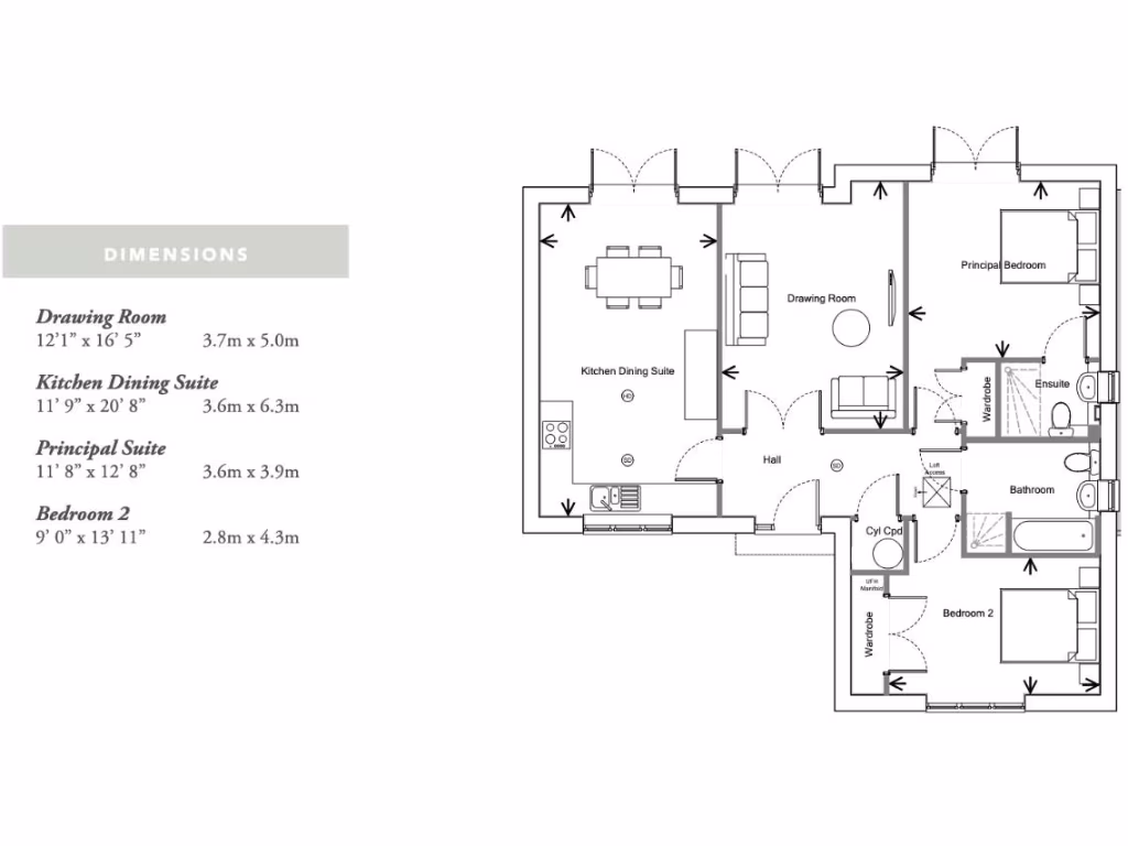
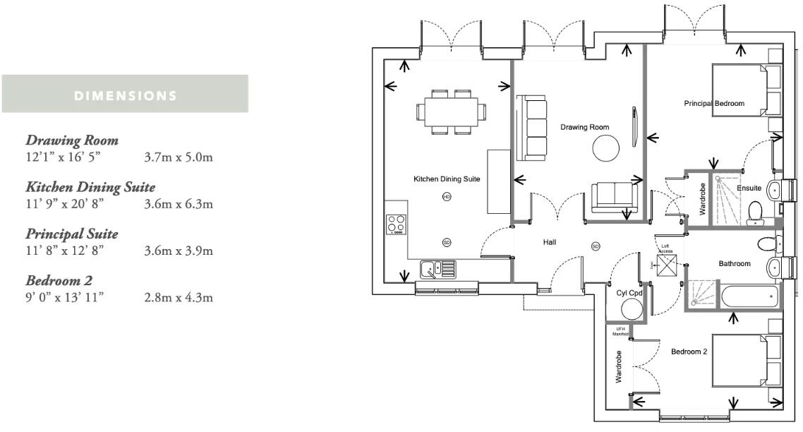
**Standout Features:**
- Prestigious double-fronted 2-bedroom detached bungalow in Cotswold style
- Energy-efficient with PV panels, Air Source Heat Pumps, and car charging points
- Spacious kitchen, family, and dining area with SMEG appliances
- Lovely garden with French doors leading outside
- Principal suite with ensuite and built-in wardrobes
- Garage with power, light, and charging point
- Located in an affluent village with low crime rates
**Potential Downsides:**
- Average room sizes; may not suit those looking for expansive spaces
- Council tax details unknown
Experience the perfect blend of modern living and traditional charm in this stunning double-fronted bungalow nestled in the picturesque Cotswold village. Constructed with energy efficiency in mind, this delightful two-bedroom home boasts a magnificent kitchen and family area featuring SMEG appliances, ideal for entertaining or cozy family gatherings. The principal suite provides a private retreat, complete with an ensuite and garden access, while the second bedroom enjoys ample built-in storage.
Step outside through the elegant French doors to a well-paved, enclosed garden—perfect for relaxing evenings or morning coffee. With a garage equipped with power and temperature efficiency features throughout, this is an ideal property for first-time buyers, families, or investors looking for a low-maintenance home in a thriving community. Don't miss your chance to make this exquisite bungalow your own in a highly desirable area; schedule a viewing today!
2 bedroom bungalow for sale in Rooktree Court, Down Ampney, Cirencester, Cotswold, GL7 — £645,000 • 2 bed • 2 bath • 715 ft²
2 bedroom bungalow for sale in Rooktree Farm Court, Down Ampney, Cirencester, Cotswold, GL7 — £645,000 • 2 bed • 2 bath • 714 ft²
2 bedroom bungalow for sale in Rooktree Farm Court, Down Ampney, Cirencester, Cotswold, GL7 — £645,000 • 2 bed • 2 bath • 984 ft²
2 bedroom bungalow for sale in Rooktree Farm Court, Cirencester, Cotswold, GL7 — £645,000 • 2 bed • 2 bath • 990 ft²
2 bedroom bungalow for sale in Rooktree Farm Court, Down Ampney, Cirencester, Cotswold, GL7 — £645,000 • 2 bed • 2 bath • 659 ft²
2 bedroom bungalow for sale in Horcott Road, Fairford, Gloucestershire, GL7 — £439,000 • 2 bed • 1 bath


































