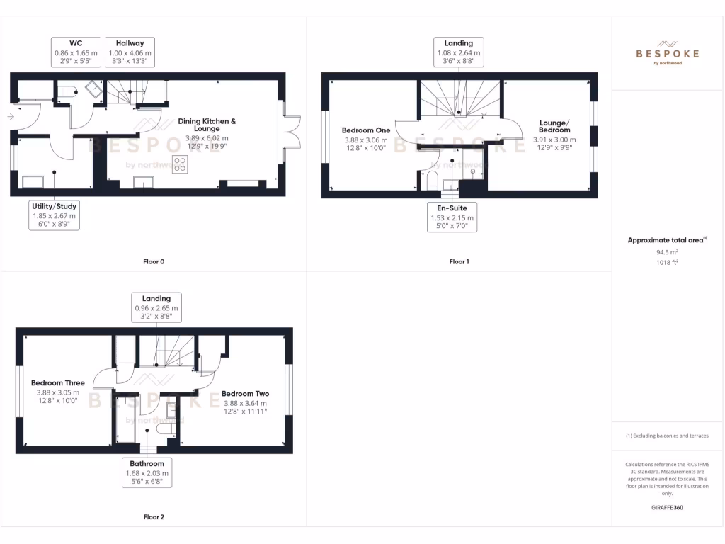
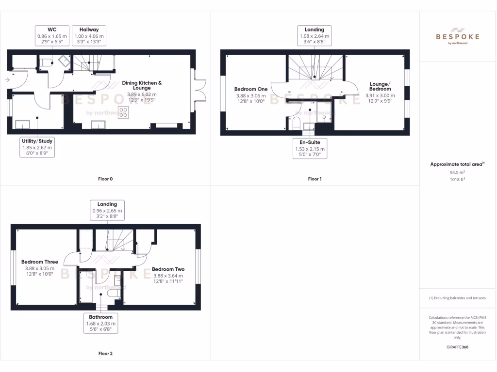
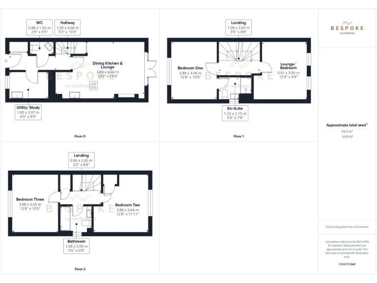
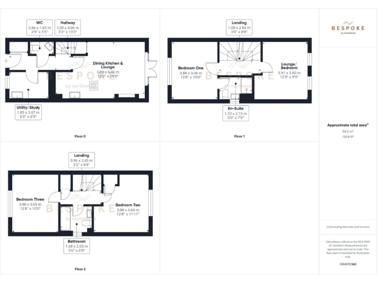
Modern-family living with flexible top-floor space and driveway parking.
Three-storey flexible layout; up to four-bedrooms or second lounge
Set on Treacle Avenue, this modern three-storey semi-detached house offers flexible family living across 1,018 sq ft. The contemporary dining kitchen opens directly to an enclosed rear garden, while a ground-floor utility, study and WC add practical day-to-day convenience. The principal bedroom includes an en-suite and the top-floor space can be used as a fourth bedroom or second lounge, with pleasant open views from the highest windows.
Built in 2016 and rated EPC B, the home benefits from mains gas central heating, driveway parking and good broadband and mobile signal — useful for home working and commuting. The property is freehold and council tax is described as affordable, making it straightforward for buyers seeking low ongoing tenure costs.
Local amenities are within reach and there are several well-regarded primary schools nearby, including an Outstanding-rated option. However, the nearest mainstream secondary school is currently rated as requiring improvement, which is an important consideration for families with older children. The area shows higher deprivation indices, and crime levels are average.
Practical realities: the plot is small, so garden space is limited, and the house is an average overall size for its type. For buyers seeking a ready-to-live-in modern family home with scope to reconfigure the top floor, this property offers good value. Investors will note the flexible layout and solid EPC, though local area factors should be considered.
3 bedroom semi-detached house for sale in Waterways Avenue, Macclesfield, SK11 — £330,000 • 3 bed • 2 bath • 796 ft²
3 bedroom town house for sale in Preston Street West, Macclesfield, Cheshire, SK11 — £350,000 • 3 bed • 2 bath • 882 ft²
3 bedroom detached house for sale in Rotherhead Drive, Macclesfield, Cheshire, SK11 — £365,000 • 3 bed • 2 bath • 1153 ft²
4 bedroom detached house for sale in Park Mount Drive, Macclesfield, SK11 8NT, SK11 — £475,000 • 4 bed • 2 bath • 1391 ft²
3 bedroom semi-detached house for sale in Thistleton Close, Macclesfield, Cheshire, SK11 — £340,000 • 3 bed • 2 bath • 798 ft²
4 bedroom detached house for sale in Haldene Road, Macclesfield, Cheshire, SK11 — £500,000 • 4 bed • 2 bath • 1709 ft²


































































































