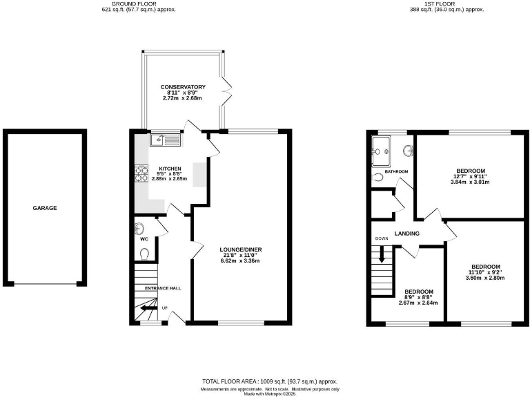
Practical three-bedroom home with conservatory and garage, close to village amenities and schools.
- Three good-sized bedrooms and family shower room
- Bright through lounge/diner with conservatory extension
- Low-maintenance rear garden with paved patio and shed
- Garage in block with adjacent parking space
- Double glazing fitted after 2002; mains gas boiler heating
- Small plot and limited outdoor space
- Area reported as above-average crime — consider security
- Freehold property on a quiet pedestrianised mews
A practical three-bedroom end-of-terrace family home set in a quiet pedestrianised mews in Kelvedon Hatch. The property offers a bright through lounge/diner, a conservatory that opens onto a low-maintenance rear garden, and a garage in a nearby block with a parking space in front. The kitchen is fitted with cream Shaker-style units and provides direct access to the conservatory for easy indoor–outdoor flow.
Upstairs are three good-sized bedrooms and a modern family shower room; a ground-floor cloakroom adds useful convenience. Double glazing was installed after 2002 and heating is by a mains-gas boiler and radiators. The house is freehold and sits close to local amenities, bus routes to Brentwood town centre and well-rated local schools, making it suited to families.
Buyers should note the small plot and modest outdoor space, and that the garage is in a block rather than attached to the house. Crime levels in the area are reported as above average, which may be relevant for some purchasers. Overall, this is a straightforward, average-sized 1980s home that will suit a buyer seeking convenient village living with modest maintenance needs and scope to personalise interiors.
3 bedroom terraced house for sale in Broad Meadow, Kelvedon Hatch, CM15 — £420,000 • 3 bed • 1 bath • 1108 ft²
4 bedroom link detached house for sale in Horseman Court, Kelvedon Hatch, Brentwood, CM15 — £550,000 • 4 bed • 1 bath • 1171 ft²
3 bedroom semi-detached house for sale in Kelvedon Green, Kelvedon Hatch, Brentwood, CM15 — £425,000 • 3 bed • 2 bath • 1023 ft²
4 bedroom detached house for sale in Roding Drive, Kelvedon Hatch, Brentwood, CM15 — £570,000 • 4 bed • 1 bath • 1386 ft²
3 bedroom semi-detached house for sale in Matchingfield, Kelvedon Hatch, Brentwood., CM15 — £550,000 • 3 bed • 2 bath • 1284 ft²
3 bedroom semi-detached house for sale in Glovers Field, Kelvedon Hatch, Brentwood, CM15 — £450,000 • 3 bed • 1 bath • 1310 ft²


















































































