Generous interior with private garden and long lease, close to shops and transport.
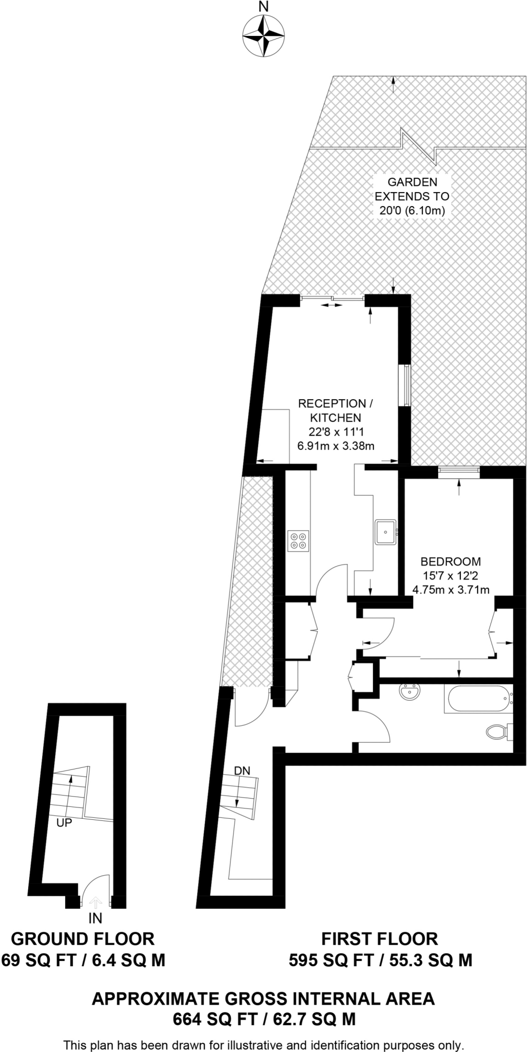
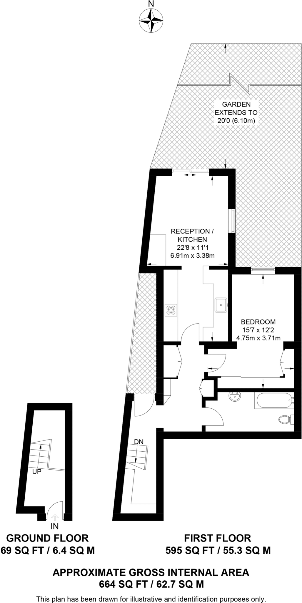
- Large one-bedroom lower-ground flat with private patio garden
- Open-plan living/kitchen plus separate study area
- Fitted storage in the double bedroom
- Contemporary bathroom; well presented throughout
- Share of freehold with 982 years remaining
- Lower-ground position — reduced natural light
- Solid brick construction; likely limited insulation and higher heating use
- Local area: high crime and higher deprivation
A well-presented one-bedroom lower-ground flat offering generous internal space and a private patio garden — rare for this price in Shepherd’s Bush. The open-plan living and kitchen area gives a contemporary feel, while the separate study offers useful work-from-home space. Fitted storage in the double bedroom keeps the layout efficient.
Practical ownership features include a long lease (982 years) and share of freehold, reducing typical leasehold concerns. The property sits in a period conversion with solid brick walls and mains gas central heating via boiler and radiators, so heating is straightforward. Fast broadband, excellent mobile signal and close links to local shops, Uxbridge Road amenities and Westfield make day-to-day life convenient.
Be clear about the material negatives: the lower-ground position means rooms receive less natural light than upper floors, and the building’s original solid brick construction likely offers limited cavity insulation, which can increase heating needs. Local area indicators show high crime and greater area deprivation than average — buyers should factor this into safety and resale considerations.
This flat suits a first-time buyer seeking space, outdoor access and transport connections, or an investor after a well-sized one-bed with garden potential. It requires no immediate structural works but buyers may wish to upgrade insulation or lighting to maximise comfort and running costs.
1 bedroom flat for sale in Boscombe Road, London, W12 — £450,000 • 1 bed • 1 bath • 596 ft²
Studio flat for sale in Boscombe Road, Shepherd's Bush, W12 — £325,000 • 1 bed • 1 bath • 400 ft²
1 bedroom flat for sale in Tadmor Street, London, W12 — £500,000 • 1 bed • 1 bath • 511 ft²
1 bedroom apartment for sale in Ellerslie Road, London, W12 — £399,950 • 1 bed • 1 bath • 538 ft²
1 bedroom flat for sale in Melina Road, London, W12 — £450,000 • 1 bed • 1 bath • 543 ft²
1 bedroom flat for sale in St Stephens Avenue, Shepherd's Bush, London, W12 — £350,000 • 1 bed • 1 bath • 447 ft²






































































































