Chain-free three-bedroom home within easy level walk of town, station and ferry.
- Three double bedrooms; one bedroom with river views
- Well-equipped kitchen/dining with Aga and integrated appliances
- Separate sitting room with featured woodburner
- Walled cottage garden, mature planting and brick garden store
- Single allocated off-street parking space
- Chain free sale; Freehold tenure
- EPC C and Council Tax Band E (above average)
- High flood risk — insurance and precautions needed
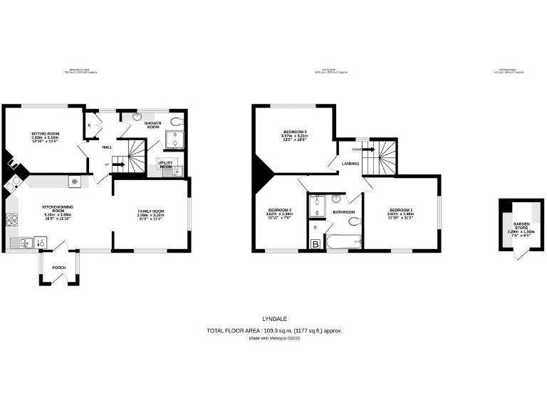
Light-filled, well-proportioned accommodation arranged over two floors, presented with many original features and a working Aga in the kitchen. The ground floor offers flexible living: kitchen/dining opening to a family room, separate sitting room with woodburner, plus a practical shower room and utility. Upstairs are three double bedrooms, one of which enjoys lovely river views, and a family bathroom with separate shower cubicle.
Outside, a walled cottage garden wraps around the house with mature planting, lawn and a brick garden store. There is one allocated off-street parking space and the property sits within level walking distance of Lymington High Street, the train station and the Isle of Wight ferry terminal — ideal for families who want easy town and coastal access.
Important practical points: the property is offered chain free and is freehold, with an EPC rating of C and council tax in Band E. The area is in a high flood-risk zone, which will affect insurance and flood-preparedness planning. The loft is accessed via a ladder and the allocated parking is a single space only.
4 bedroom house for sale in Undershore Road, Lymington, Hampshire, SO41 — £1,200,000 • 4 bed • 3 bath • 2164 ft²
3 bedroom semi-detached house for sale in King's Saltern Road, Lymington, SO41 — £1,200,000 • 3 bed • 3 bath • 1717 ft²
3 bedroom semi-detached house for sale in Flushards, Lymington, Hampshire, SO41 — £575,000 • 3 bed • 1 bath • 1136 ft²
4 bedroom detached house for sale in Undershore Road, Lymington, SO41 — £1,500,000 • 4 bed • 3 bath • 2196 ft²
3 bedroom house for sale in Leigh Park, Lymington, SO41 — £420,000 • 3 bed • 1 bath • 800 ft²
3 bedroom semi-detached house for sale in Flushards, Lymington, Hampshire, SO41 — £750,000 • 3 bed • 2 bath • 1398 ft²


























































































