Chain-free family home with garage, parking and excellent commuter links.
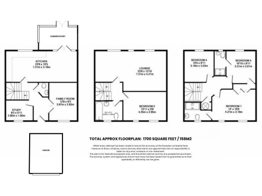
- Chain-free end-of-terrace townhouse, about 1,700 sq ft
- Four double bedrooms (convertible to six) and four bathrooms
- Detached garage to rear plus driveway and front parking
- Open-plan kitchen/diner, conservatory and generous lounge
- Low-maintenance enclosed gardens front and back
- Built 2003–2006; double-glazed, mains gas heating
- Small plot size; limited garden space
- Council tax above average; area has pockets of deprivation
This chain-free end-of-terrace townhouse offers flexible family living across three floors and around 1,700 sq ft. The house has four double bedrooms (configurable to six), four bathrooms including two en-suites, a wide open-plan kitchen/diner, conservatory and a generous first-floor lounge — useful space for growing families or multi-generational households.
Practical features include a detached garage with rear driveway access, additional off-street parking to the front, low-maintenance enclosed gardens front and back, and fast broadband — all convenient for commuting and home working. Built c.2003–2006 with double glazing and gas central heating, the property presents as modern and well-maintained externally.
Buyers should note the plot is small and the house sits in a mixed local area with average crime and pockets of deprivation; council tax is above average. Some nearby primary schools are rated ‘Requires improvement’, though several secondary options are rated Good and one grammar school ranks in the top 10% locally. As with any substantial home, buyers should verify room sizes, structural condition and services via survey before purchase.
Overall, this substantial, versatile home suits families and buyers looking for space, parking and good transport links to Sittingbourne station and the A2/A249. It offers immediate accommodation with scope for interior updating or reconfiguration to maximise value and rental potential.
3 bedroom end of terrace house for sale in Moonstone Square, Sittingbourne, Kent, ME10 — £300,000 • 3 bed • 2 bath • 1356 ft²
2 bedroom terraced house for sale in Realgar Court, Sittingbourne, Kent, ME10 — £250,000 • 2 bed • 1 bath • 590 ft²
3 bedroom end of terrace house for sale in Moonstone Square, Sittingbourne, ME10 5JN, ME10 — £300,000 • 3 bed • 3 bath • 767 ft²
4 bedroom end of terrace house for sale in Wove Road, Sittingbourne, Kent, ME10 — £375,000 • 4 bed • 2 bath • 1108 ft²
4 bedroom detached house for sale in Whimbrel Close, Sittingbourne, Kent, ME10 — £400,000 • 4 bed • 1 bath • 1292 ft²
4 bedroom end of terrace house for sale in Easton Drive, Sittingbourne, ME10 3FE, ME10 — £325,000 • 4 bed • 3 bath • 1163 ft²














































































