Generous living space with lift, underground parking and excellent broadband.
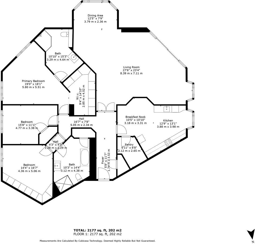
Extremely large 2,177 sq ft first-floor apartment
A rare, chain-free first-floor apartment in highly sought-after Hale, this purpose-built home occupies an unusually large 2,177 sq ft footprint. The accommodation is bright and open-plan with a generously proportioned living room that opens onto a balcony, three double bedrooms and two bathrooms — including a principal suite — ideal for family life or professional occupiers seeking space.
Practical comforts are in place: lift access, underground parking, mains gas central heating, double glazing and very fast broadband. The property sits in well-maintained, landscaped grounds in a very affluent, low-crime neighbourhood close to several top-rated schools, making it particularly suitable for families.
Costs and building facts are straightforward: the property is share-of-freehold with a very long lease (962 years) and a below-average service charge of £420pcm. Council Tax is Band G and described as quite expensive. The building dates from the late 1970s/early 1980s and has double glazing installed before 2002 and cavity walls with partial insulation (assumed), so buyers looking for the highest thermal performance should note potential improvement works.
In short, this is a large, well-located apartment that combines substantial living space, secure parking and strong local schools. It will suit buyers wanting generous accommodation in Hale without the delay of a chain, while those prioritising the absolute latest energy-efficiency finishes may wish to budget for upgrades.
3 bedroom apartment for sale in Ashley Road, Hale, Altrincham, WA15 — £450,000 • 3 bed • 2 bath • 935 ft²
2 bedroom apartment for sale in Ashley Bank, Ashley Road, Hale, WA14 3NH, WA14 — £530,000 • 2 bed • 2 bath • 1238 ft²
2 bedroom apartment for sale in Leicester Road, Hale, WA15 — £625,000 • 2 bed • 2 bath • 1482 ft²
2 bedroom apartment for sale in 15 Heath Road, Hale, WA14 2UJ, WA14 — £450,000 • 2 bed • 2 bath • 878 ft²
2 bedroom apartment for sale in Harrop Road, Hale, WA15 — £725,000 • 2 bed • 2 bath • 2000 ft²
3 bedroom apartment for sale in The Avenue, Hale, Altrincham, WA15 — £725,000 • 3 bed • 3 bath • 2088 ft²


























































































