Secluded three-bed home with annex and abundant mature outdoor space.
Approximately 3/4 acre natural, secluded gardens with countryside views
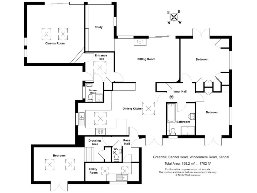
Set on approximately 3/4 acre of mature, natural gardens on the fringe of Kendal, this single-storey home offers spacious, flexible living and strong potential for multigenerational use. The main bungalow provides three double bedrooms, generous reception rooms including a cinema room, a large breakfast kitchen with utility, and both a bathroom and separate shower room. An attached ancillary accommodation with its own access is already used as additional living/bedroom space.
Practical features include double glazing, an air source heat pump, underfloor heating to parts of the kitchen, and B4RN superfast fibre. There is ample off-street parking, several covered seating areas, a stone shelter, and a distinctive hobbit house set within the grounds — ideal for garden projects, outdoor entertaining or a private retreat.
Notable matters: previous planning permission for a large extension (Lake District National Park ref. 7/2021/5300) has lapsed. The property has non-mains drainage and an EPC rating of E; some buyers may wish to upgrade efficiency or complete works before reapplying for planning. Council tax is described as expensive. Overall this is a characterful, sizable bungalow suited to families seeking countryside privacy or buyers wanting a substantial garden and scope to improve and extend.
3 bedroom detached bungalow for sale in Singleton Park Road, Kendal, LA9 — £750,000 • 3 bed • 1 bath • 2400 ft²
4 bedroom detached bungalow for sale in 28 Riverbank Road, LA9 — £600,000 • 4 bed • 2 bath • 1507 ft²
4 bedroom detached house for sale in Greenhills, Skelsmergh, LA8 9JU , LA8 — £485,000 • 4 bed • 2 bath • 2204 ft²
3 bedroom detached bungalow for sale in 4 Crummock Drive, Kendal, LA9 — £335,000 • 3 bed • 1 bath • 786 ft²
3 bedroom detached house for sale in 7 The Walled Garden, Kendal, LA8 — £475,000 • 3 bed • 2 bath • 959 ft²
5 bedroom detached house for sale in 2 Chalk Grove, Kendal, LA9 — £630,000 • 5 bed • 3 bath • 1938 ft²






































































































