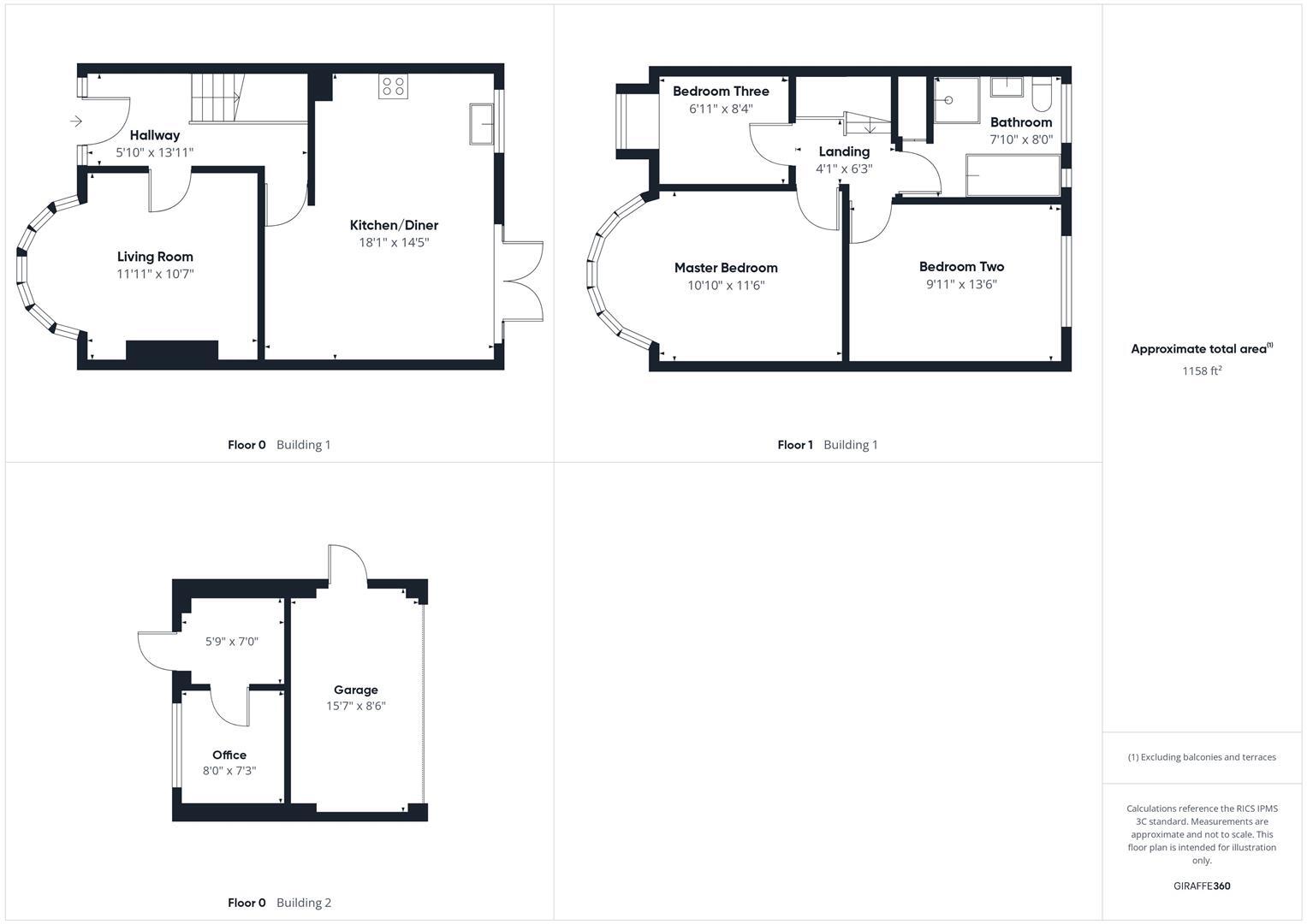
Ready-to-live-in three-bedroom home with garage, office and excellent transport links..
- Three good-size bedrooms with bay windows to the front
- Large open-plan kitchen/diner with integrated appliances
- Modern family bathroom with bath and separate shower
- Private, small rear garden with patio and rear access
- Separate outbuilding/home office plus storage room
- Garage with power and lighting; rear access
- Solid brick walls (likely no cavity insulation) — potential upgrade need
- Single bathroom only; Council Tax Band E (above average)
A well-presented three-bedroom mid-terrace offering comfortable family living in a sought-after Ruislip location. The ground floor features a spacious lounge with a front bay window and a large open-plan kitchen/diner that opens onto a private rear garden — the layout suits everyday family life and modern entertaining. The property includes a separate outbuilding/home office and a garage, useful for remote working, storage and off-street parking.
Upstairs are three good-sized bedrooms and a modern family bathroom with both bath and separate shower. The home benefits from gas central heating, double glazing with shutters to the front and tasteful fittings throughout, reducing immediate renovation needs. The house is freehold and sits within easy walking distance of Ruislip High Street, local schools (including several Ofsted outstanding primaries) and three tube lines, making commutes into central London straightforward.
Notable practical points: the rear garden and plot are small for the area, and there is a single family bathroom only. The property was constructed in the 1930s–1940s and has solid brick walls (assumed uninsulated), so buyers considering major thermal upgrades or loft/insulation work should factor that in. Council Tax band E is above the national average.
This home will suit families seeking convenience to good schools and transport, buyers wanting a ready-to-live-in house with useful outbuildings, or those looking to add value through targeted insulation and energy improvements. Viewings are recommended to appreciate the internal space, garage and flexible home-office arrangement.
3 bedroom end of terrace house for sale in Torrington Road, Ruislip, HA4 — £725,000 • 3 bed • 1 bath • 1457 ft²
3 bedroom end of terrace house for sale in Victoria Road, Ruislip, HA4 — £600,000 • 3 bed • 1 bath • 1027 ft²
3 bedroom terraced house for sale in Lynmouth Drive, Ruislip, HA4 — £550,000 • 3 bed • 2 bath • 926 ft²
3 bedroom terraced house for sale in Ashburton Road, Ruislip, Middlesex, HA4 — £525,000 • 3 bed • 1 bath • 744 ft²
3 bedroom terraced house for sale in Westwood Close, Ruislip, HA4 — £475,000 • 3 bed • 1 bath • 863 ft²
3 bedroom terraced house for sale in Dartmouth Road, Ruislip, HA4 — £500,000 • 3 bed • 1 bath • 972 ft²


























































