Large renovated plot with commuter convenience and excellent outdoor space.
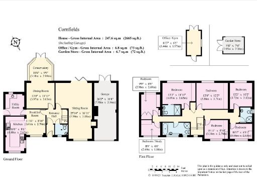
Six bedrooms plus study, principal bedroom with ensuite
This spacious, newly renovated detached house sits on a very large 0.37-acre plot on the fringes of Otford, offering flexible accommodation across approximately 2,665 sq ft. The layout suits a growing family: a generous kitchen/breakfast room with utility, formal dining room linking to the conservatory, a dual-aspect sitting room with bifold doors and wood-burning stove, six bedrooms (including a principal with ensuite) plus study. Outdoor living is a highlight — a south-facing lawn, mature hedging for privacy, a terrace for entertaining and an outbuilding suitable for a home gym or office.
Practical features include an integral garage with workshop space, an in-and-out driveway giving ample off-street parking, fast broadband and excellent mobile signal. The property is set in an Area of Outstanding Natural Beauty yet remains convenient: Otford station is about 300 yards away with direct commuter services, and local primary and prep schools are within easy reach. The house was originally built in 1987 and has been thoughtfully extended and updated to contemporary standards.
Considerations: council tax is described as quite expensive and the property occupies a hamlet/edge-of-village setting, which may feel more secluded than a town-centre location. While newly renovated, the size and age of the house mean upkeep and ongoing maintenance of the large garden and outbuildings should be expected. There is no flood risk and the plot offers future potential for landscaping or further tailored improvements.
This is a family-oriented home that balances generous indoor living spaces with a large, private garden and convenient commuter links — well suited to buyers seeking room to grow, home-working options and countryside character within easy reach of central London.
4 bedroom detached house for sale in Beechy Lees Road, Otford, Sevenoaks, TN14 — £1,150,000 • 4 bed • 3 bath • 2365 ft²
3 bedroom semi-detached house for sale in Well Road, Otford, TN14 — £800,000 • 3 bed • 2 bath • 1236 ft²
5 bedroom detached house for sale in High Street, Otford, Sevenoaks, Kent, TN14 — £3,495,000 • 5 bed • 5 bath • 6560 ft²
4 bedroom house for sale in Knighton Road, Otford, Sevenoaks, Kent, TN14 — £665,000 • 4 bed • 2 bath • 1716 ft²
3 bedroom detached house for sale in Tudor Drive, Otford, Sevenoaks, TN14 — £750,000 • 3 bed • 1 bath • 1449 ft²
5 bedroom detached house for sale in Shoreham Road, Otford, Sevenoaks, Kent, TN14 — £2,100,000 • 5 bed • 5 bath • 4635 ft²


















































































































































































































































































