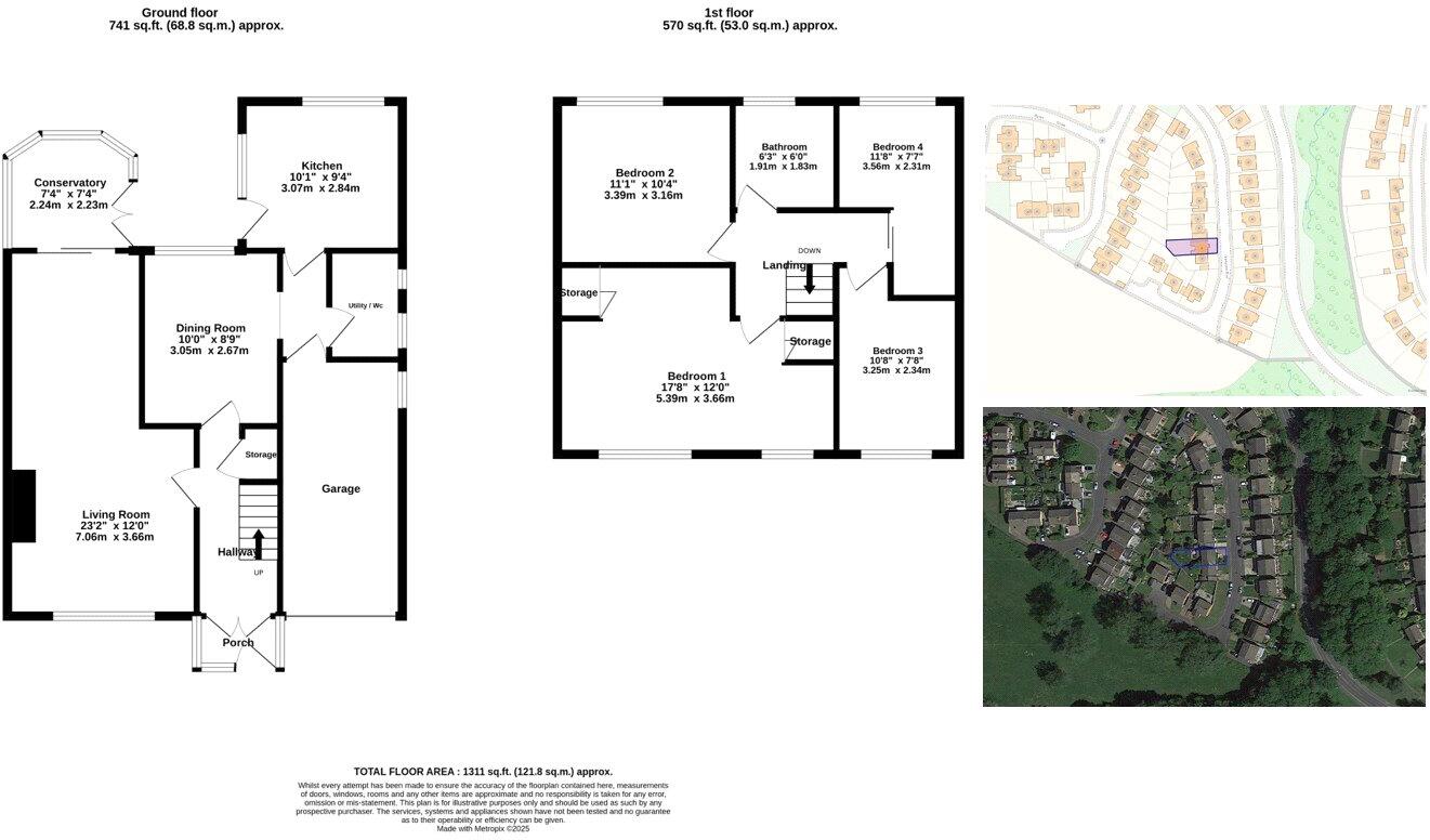
**Standout Features:**
- Extended semi-detached house
- Four spacious bedrooms
- Large living room with conservatory access
- Well-appointed kitchen with integrated appliances
- Landscaped rear garden, perfect for entertaining
- Integral garage and driveway parking
- Low crime area with excellent mobile signal and fast broadband
**Summary:**
Discover this charming extended semi-detached house located in the desirable Gardenwood estate of East Grinstead. Priced between £500,000 and £525,000, this home is perfect for families or first-time buyers looking for space and comfort. The property boasts four well-proportioned bedrooms and a large, inviting living room that opens up to a light-filled conservatory—ideal for relaxation and family gatherings. The well-equipped kitchen features a range of integrated appliances, making it perfect for home chefs, while the spacious dining room offers ample room for entertaining.
Step outside to a beautifully landscaped garden that provides a peaceful retreat with both patio and lawn areas—excellent for gatherings or intimate family evenings. The added convenience of a single garage and driveway enhances functionality. Located in an affluent, low-crime neighborhood with fast broadband access and good schools nearby, this property presents an excellent opportunity for secure family living.
While the house is in overall good condition, potential buyers should note that the cavity walls may benefit from insulation updates. Early viewings are highly recommended to ensure you don't miss out on this inviting family home with fantastic potential.
4 bedroom detached house for sale in Austen Close, East Grinstead, West Sussex, RH19 — £575,000 • 4 bed • 2 bath • 1281 ft²
4 bedroom semi-detached house for sale in Dorset Avenue, East Grinstead, West Sussex, RH19 — £475,000 • 4 bed • 2 bath • 1109 ft²
4 bedroom semi-detached house for sale in Milton Crescent, East Grinstead, West Sussex, RH19 — £420,000 • 4 bed • 1 bath • 872 ft²
4 bedroom detached house for sale in Hampton Way, East Grinstead, West Sussex, RH19 — £500,000 • 4 bed • 2 bath • 1119 ft²
4 bedroom semi-detached house for sale in Chaucer Avenue, East Grinstead, RH19 — £500,000 • 4 bed • 2 bath • 1223 ft²
3 bedroom semi-detached house for sale in Felbridge Close, East Grinstead, West Sussex, RH19 — £500,000 • 3 bed • 1 bath • 1152 ft²










































































































