Chain-free ground-floor apartment with private outdoor space and low running costs.
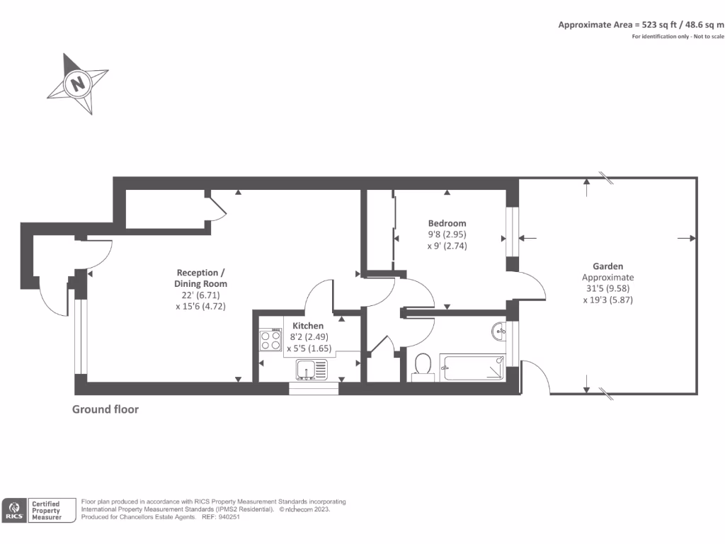
Ground-floor one-bedroom flat with private rear garden access
A ground-floor one-bedroom apartment offering private garden access and share of freehold ownership. The flat is chain-free and has no service charges or ground rent, which reduces running costs and simplifies sale. At around 523 sq ft it suits a single buyer, couple or investor seeking a low-maintenance town property with outside space.
The interior is functional but dated in places: double glazing is fitted, but heating is by electric storage heaters and some rooms show 1970s fittings and finishes. The building dates from the late 1970s/early 1980s and is timber-framed (assumed), so buyers should allow for typical maintenance and decoration.
A significant practical issue is the remaining lease term of 82 years; this is below typical mortgage lender comfort levels and will need prompt renewal, which adds cost and administration. On the plus side the flat benefits from fast broadband, good local schools nearby and bus links into Kidlington and Oxford, making it a convenient base for commuting or rental use.
Overall this property is best suited to a first-time buyer, investor or downsizer who wants garden access and minimal communal obligations, and who is prepared to update interiors and address the short lease in the near term.
1 bedroom apartment for sale in The Ridings, Kidlington, OX5 — £225,000 • 1 bed • 1 bath • 510 ft²
1 bedroom flat for sale in Kidlington, Oxfordshire, OX5 — £210,000 • 1 bed • 1 bath • 518 ft²
1 bedroom flat for sale in Walton Manor, North Oxford, OX2 — £325,000 • 1 bed • 1 bath • 350 ft²
2 bedroom apartment for sale in Green Ridges, Headington, Oxford, OX3 — £275,000 • 2 bed • 1 bath • 570 ft²
1 bedroom apartment for sale in Vernon Place, Abingdon, OX14 — £250,000 • 1 bed • 1 bath • 510 ft²
1 bedroom maisonette for sale in Wilsdon Way, Kidlington, OX5 — £195,000 • 1 bed • 1 bath • 561 ft²










































