AL5 5SN - 3 bed thornbury three bed townhouse in Thornbury, AL5 5SN

View on Property Piper

3 bedroom terraced house for sale in Thornbury, Harpenden, Hertfordshire, AL5

Summary - 20 THORNBURY HARPENDEN AL5 5SN

3 bed 1 bath Terraced

Chain-free three-bedroom home near outstanding schools with garage and extension potential.
Three double bedrooms, built-in wardrobes to main bedroom
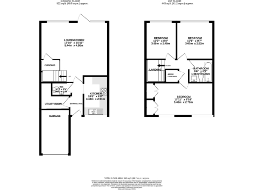
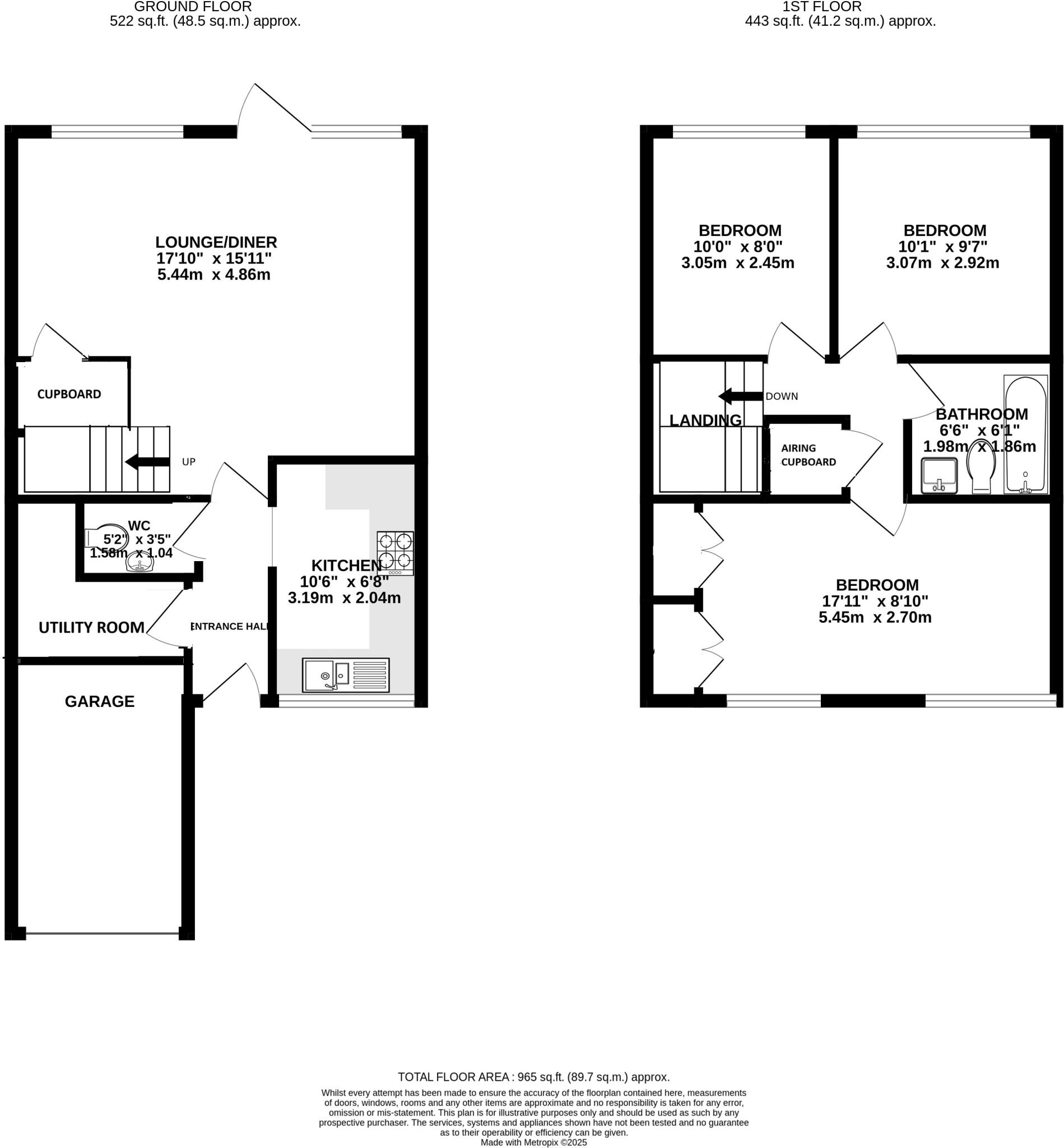
Set in a quiet Thornbury cul-de-sac, this three-bedroom mid-century terrace offers a practical family layout and immediate move-in potential. The generous main bedroom includes built-in wardrobes, and the lounge/diner opens directly to a low-maintenance rear garden — convenient for young families and busy lives. Off-street parking plus an integral garage (part-converted to a utility) add real everyday convenience.

The house sits on approximately 965 sq ft with well-proportioned reception spaces and good natural light. It is offered chain free and within easy reach of Harpenden town centre and several outstanding local schools, making it appealing to buyers prioritising location and schooling. There is scope to extend further (subject to planning) if you want to increase living space or adapt the layout.

Buyers should note this property reflects its mid-1970s construction: cavity walls are assumed to have no added insulation and the home would benefit from updating in parts. There is a single family bathroom and a ground-floor WC which can be limiting for larger households. The plot is small, but the rear access and low-maintenance garden are practical positives. Overall this home suits growing families seeking good local schools and potential to add value through refurbishment or extension.

Property Details

Brochure Descriptions

Image Descriptions

Floorplan Description

Rooms

Textual Property Features

Target Audience

AI Tags

Detected Visual Features

EPC Details

Nearby Schools

Nearest Bars And Restaurants

,,,,}

Nearest General Shops

,,}

Nearest Grocery shops

,,}

Nearest Supermarkets

,,}

Nearest Religious buildings

,,}

Nearest Medical buildings

,,,}

Nearest Airports

,,}

Nearest Leisure Facilities

,,,,}

Nearest Tourist attractions

,,}

Nearest Train stations

,,,,}

Nearest Bus stations and stops

,,,,}

Nearest Hotels

,,}

Tags

Local Market Stats

AirBnB Data

Similar Properties

Meta

High Res Images

Compatible Images

Low res Images

Thumbnails

Raw Images

High Res Floorplan Images

Compatible Floorplan Images

Low res Floorplan Images

FloorplanImages Thumbnail

Raw Floorplan Images