**Standout Features:**
- Recently renovated, newly decorated throughout
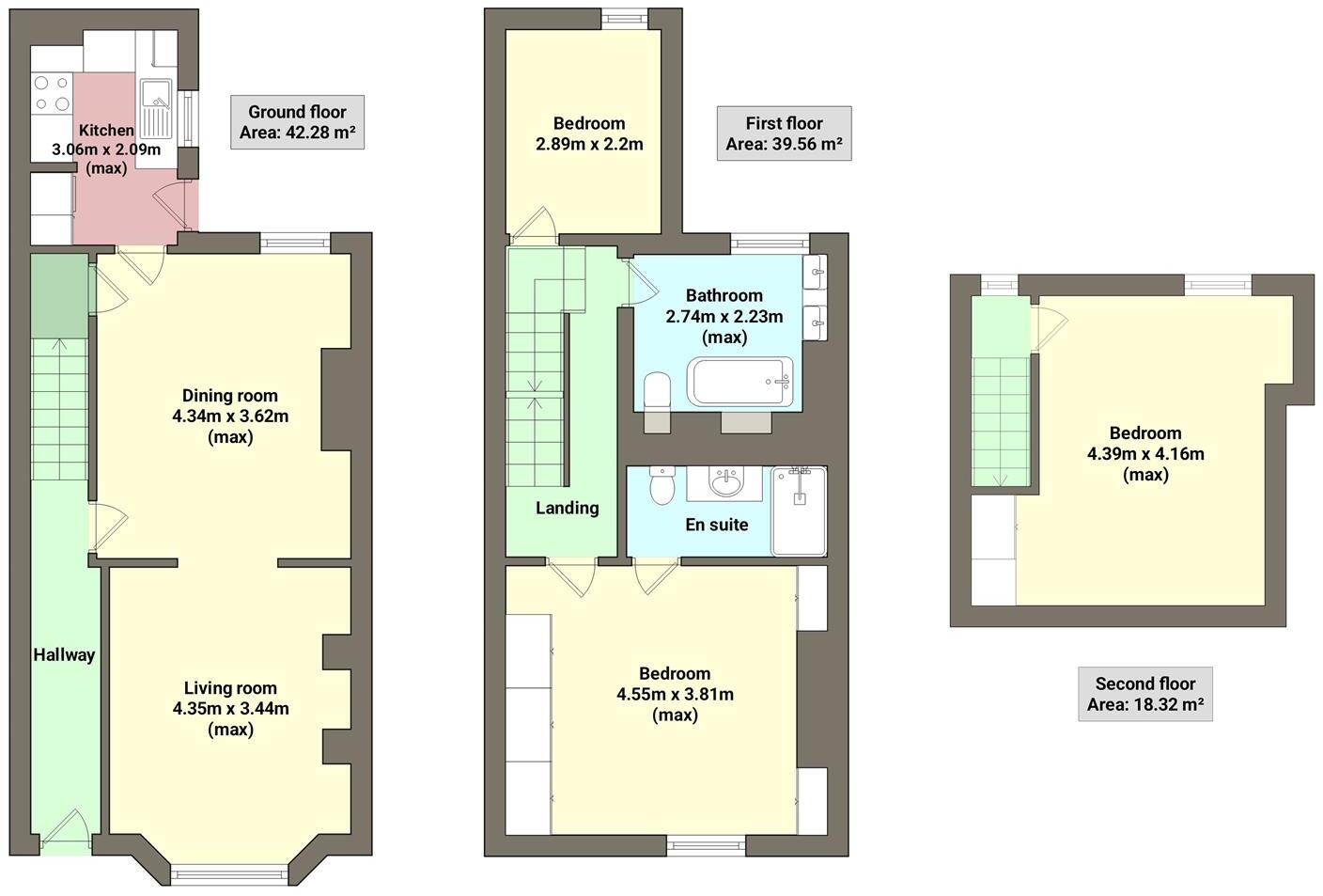
- Spacious three-bedroom layout over three floors
- Luxury bathrooms with a freestanding bathtub and ensuite with rainfall shower
- Modern 'Wren' kitchen with Quartz countertops and built-in appliances
- Large front garden and cozy rear courtyard
- Character features including exposed brickwork and wood burner
**Potential Concerns:**
- Average local area classification (hampered neighbourhoods)
- Property built before 1900, with walls lacking insulation
- Small plot size, potentially limiting outdoor space
Nestled in the vibrant Conservation area of Old Swan, Liverpool, this charming three-bedroom mid-terrace house offers an exceptional blend of modern elegance and classic character. The beautifully renovated interior features an inviting reception room adorned with herringbone wood flooring, alongside a stunning kitchen boasting custom green shaker units and sleek quartz countertops—perfect for any home chef. Each of the three well-proportioned bedrooms offers ample living space, with the master suite enjoying the luxury of an en-suite shower room.
The large front garden welcomes you, while the cozy rear courtyard serves as a perfect retreat for outdoor enjoyment. With its contemporary amenities combined with traditional design elements, this property is ideal for families or first-time buyers seeking room to grow in a well-connected neighborhood. It’s a unique opportunity to lay down roots in a vibrant community, but don’t wait—homes of this quality and charm don’t stay on the market for long!







































































































































