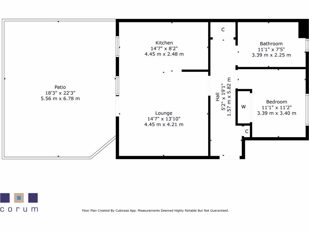
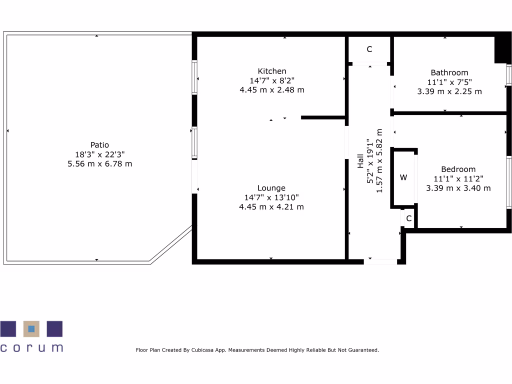
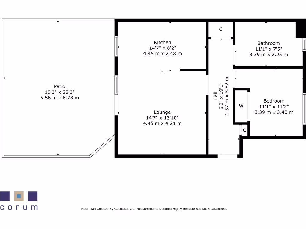
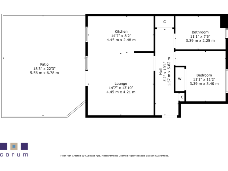
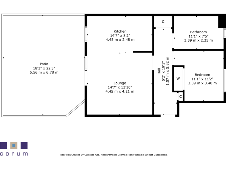
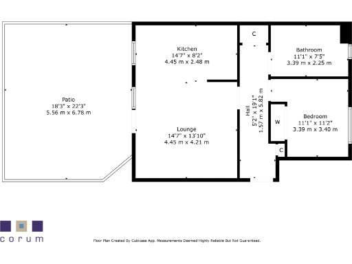
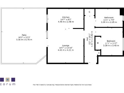
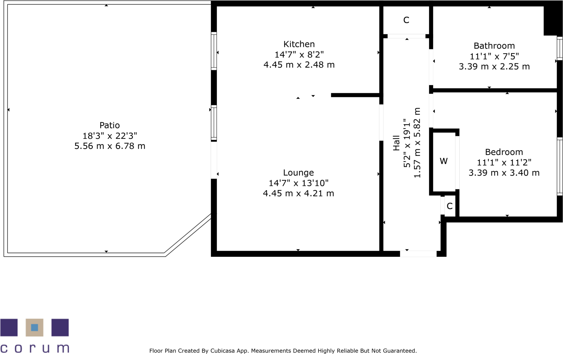
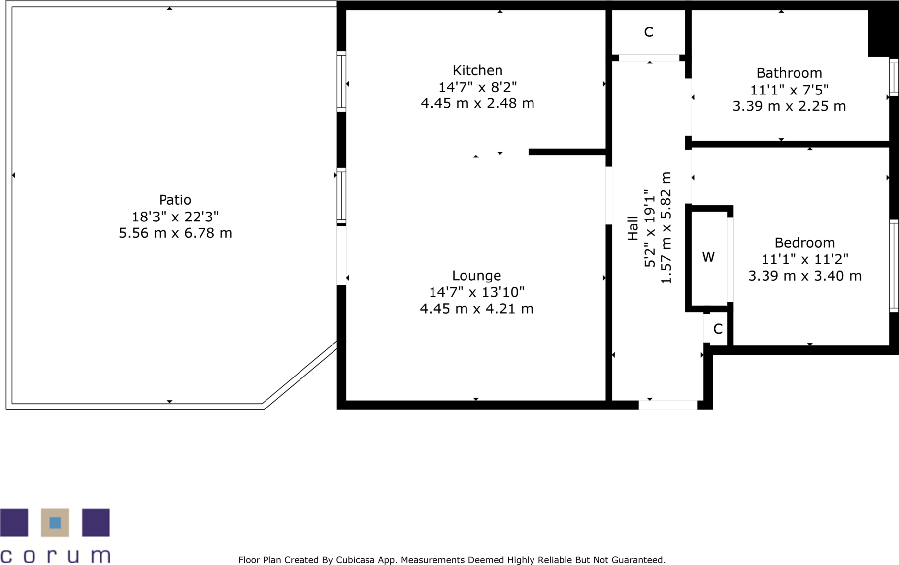
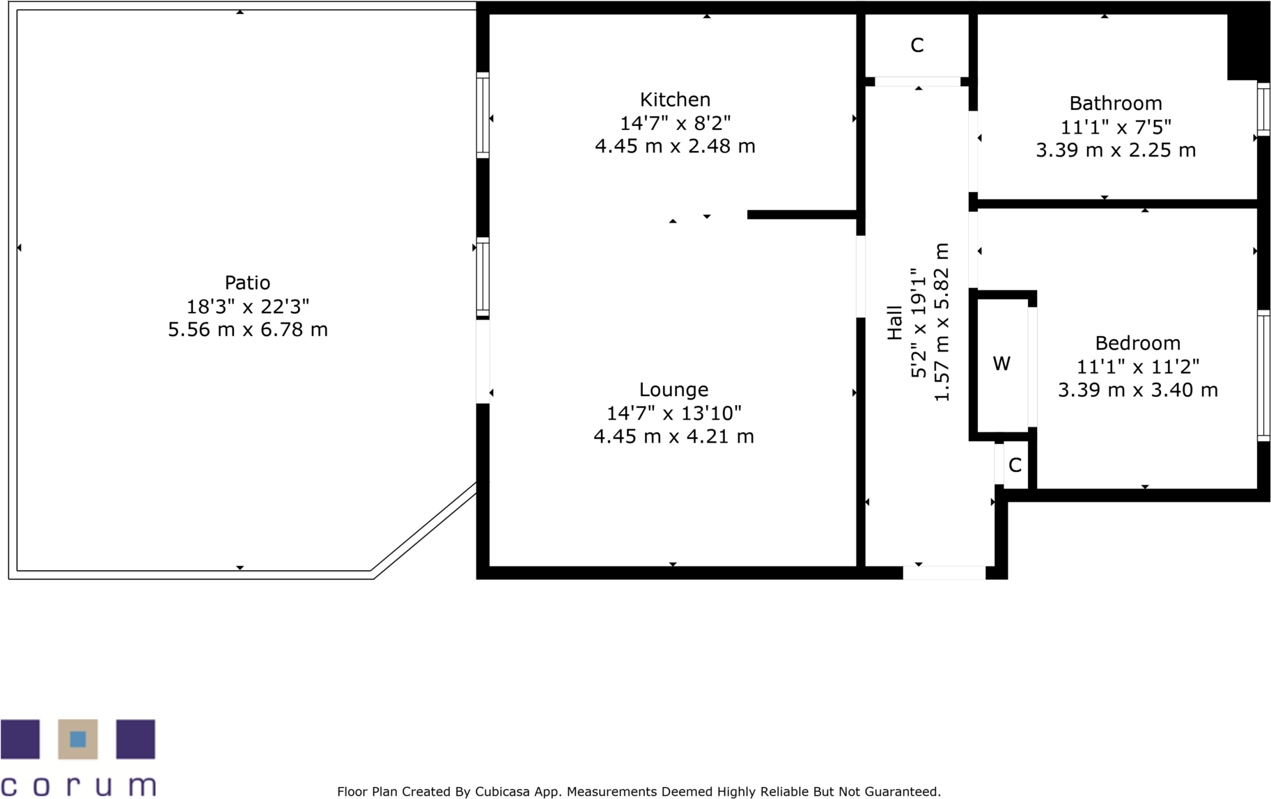
Large terrace, parking and easy access to transport and amenities.
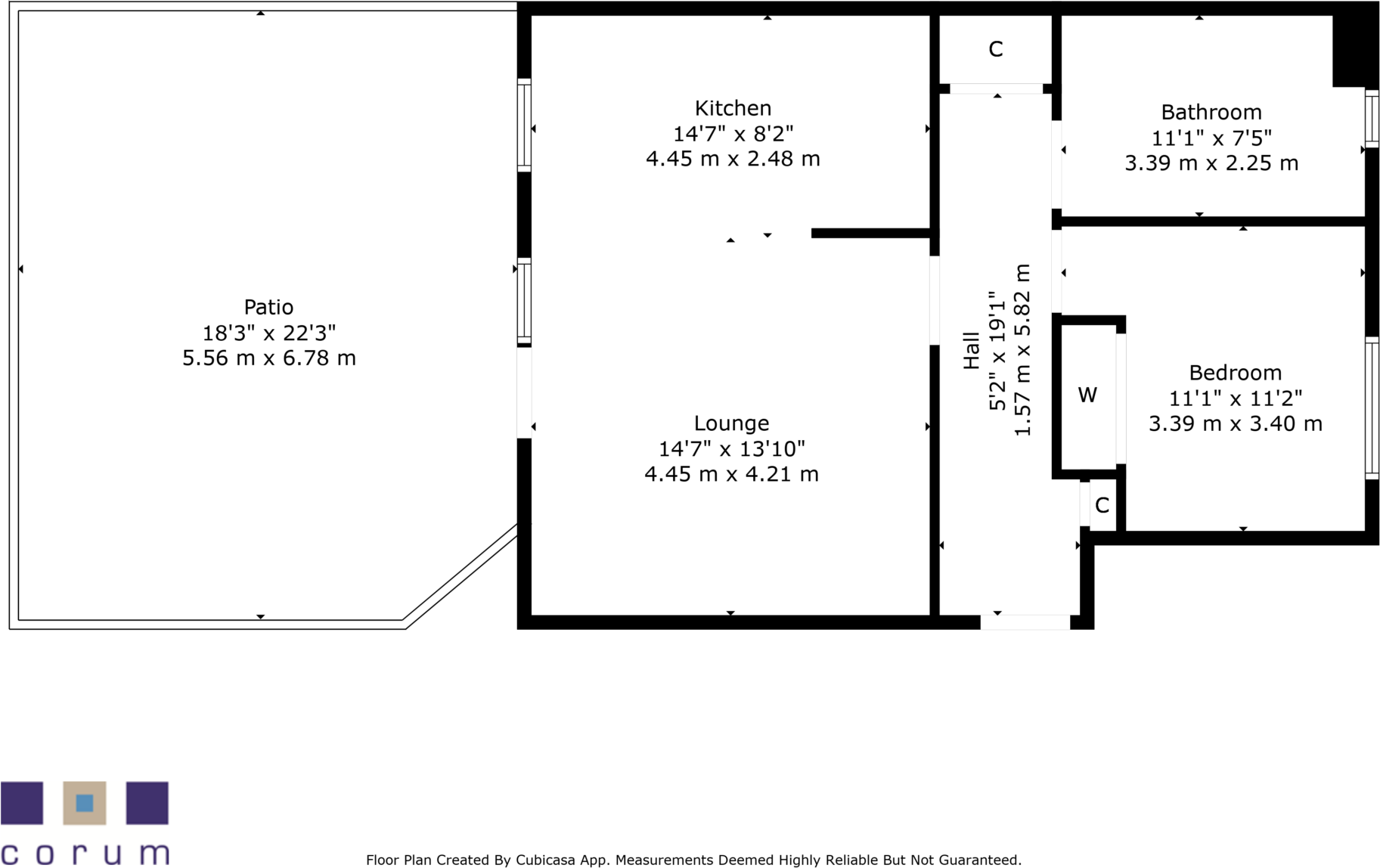
- Large private front terrace with direct access from lounge
- Allocated off-street parking included
- Open-plan lounge and fitted kitchen, bright natural light
- Double bedroom with built-in wardrobes
- Gas central heating and double glazing (EER Band C)
- Video entry, lift and communal maintained areas
- Area classified as very deprived — consider socio-economic factors
- Ground-floor position may affect privacy and security perceptions
Set on the ground floor of a smart modern development, this one-bedroom apartment offers generous internal space and a large private front terrace ideal for outdoor living. The open-plan lounge and kitchen are bright and practical, with direct terrace access and room for dining and entertaining.
Practical features include allocated off-street parking, video entry, lift access to other floors, gas central heating and double glazing. A double bedroom with built-in wardrobes and a full three-piece bathroom complete the accommodation; Energy Efficiency Rated C and council tax described as affordable.
The property sits in North Kelvinside close to Byres Road and Great Western Road, with excellent transport links and local amenities nearby. Note the immediate neighbourhood scores as very deprived; buyers should weigh local social-economic factors alongside the clear convenience and rental appeal the location offers.
1 bedroom apartment for sale in Oban Drive, North Kelvinside, Glasgow, G20 — £149,000 • 1 bed • 1 bath • 557 ft²
1 bedroom apartment for sale in Dick Street, North Kelvinside, Glasgow, G20 — £119,000 • 1 bed • 1 bath • 483 ft²
1 bedroom apartment for sale in Cleveden Drive, Clevden, Glasgow, G12 — £185,000 • 1 bed • 1 bath • 661 ft²
1 bedroom flat for sale in Oban Drive, Glasgow, G20 — £165,000 • 1 bed • 1 bath • 536 ft²
1 bedroom flat for sale in 1/4 18 Oban Drive, North Kelvinside, G20 — £140,000 • 1 bed • 1 bath • 457 ft²
1 bedroom flat for sale in Centurion Way, Yorkhill, Glasgow, G3 — £155,000 • 1 bed • 1 bath






















































































































































































































