Large garden plot and garage close to airport, station and local schools.
Chain-free sale, first time marketed in 51 years
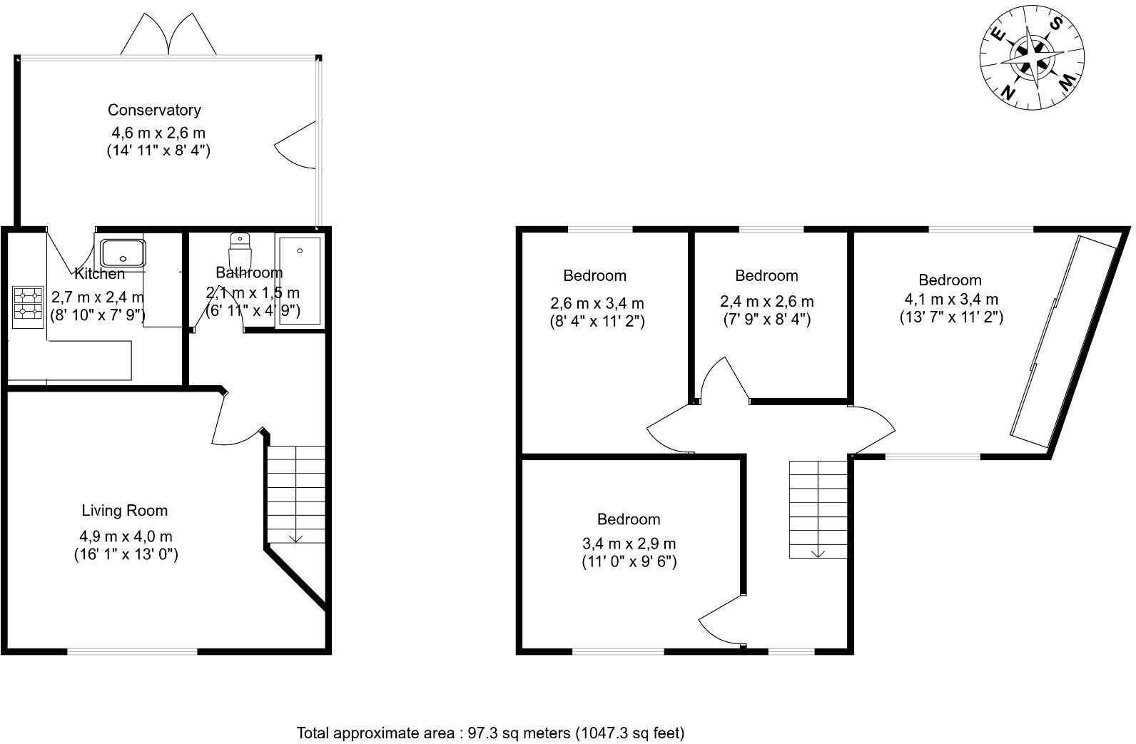
A spacious four-bedroom semi-detached house set on a notably large plot in a quiet cul-de-sac of the Vauxhall Park area. The property offers generous living space including a bright living room, conservatory dining area, and a modern kitchen that opens to a wide rear garden with natural stone patio, large shed and detached garage. A broad driveway provides parking for several cars and the home benefits from freehold tenure and chain-free sale — rare for a house on the market after 51 years.
This home will suit young families and commuter buyers: it is close to Luton Airport, Luton Parkway station and local schools rated Outstanding and Good. Practical everyday advantages include excellent mobile signal, fast broadband and average local crime and deprivation metrics. The master bedroom includes built-in wardrobes and air conditioning, and the plot size gives scope for outdoor living or further extension subject to consents.
Buyers should note there is a single family bathroom serving four double bedrooms, which could be restrictive for larger households and may prompt future replanning. While parts of the property have modern fittings — notably the kitchen — other areas reflect mid-20th century styling and may benefit from cosmetic updating to suit contemporary tastes. Viewing is recommended to appreciate the plot, garage and parking which are strong value drivers in this area.
3 bedroom detached house for sale in Polegate, Luton, LU2 — £460,000 • 3 bed • 2 bath • 1069 ft²
4 bedroom detached house for sale in Old Bedford Road, Luton, LU2 — £925,000 • 4 bed • 2 bath • 1953 ft²
3 bedroom semi-detached house for sale in Buckingham Drive, Luton, LU2 — £400,000 • 3 bed • 2 bath • 1195 ft²
3 bedroom semi-detached house for sale in Eaton Valley Road, Luton, Bedfordshire, LU2 0SN, LU2 — £350,000 • 3 bed • 1 bath • 1179 ft²
3 bedroom detached house for sale in Falconers Road, Luton, Bedfordshire, LU2 9ET, LU2 — £350,000 • 3 bed • 1 bath • 610 ft²
2 bedroom end of terrace house for sale in Littlefield Road, Luton, Bedfordshire, LU2 9BU, LU2 — £325,000 • 2 bed • 1 bath • 856 ft²






































































































