NG17 4GU - 2 bedroom terraced house for sale in Oak Tree Road, SuttonI…

View on Property Piper

2 bedroom terraced house for sale in Oak Tree Road, Sutton-In-Ashfield, NG17

Summary - 23 Oak Tree Road NG17 4GU

2 bed 1 bath Terraced

Two-bed Victorian terrace with tenant in situ and immediate rental income.
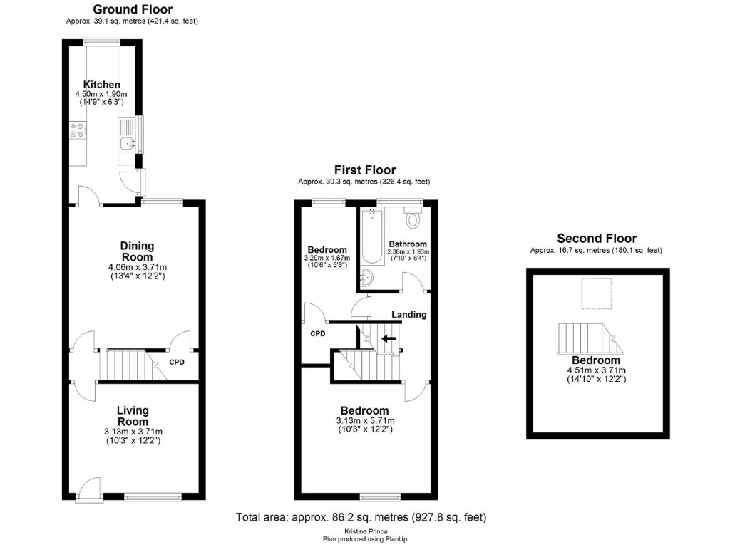
Two double bedrooms plus attic room
A traditional two-bedroom mid-terrace with an attic, offered as a freehold investment with an experienced long-term tenant in situ. The house retains period character — a Victorian-style fireplace and solid brick construction — and provides flexible accommodation across ground, first and attic floors. The rear garden is enclosed and low-maintenance; on-street parking serves the property.

The property is currently let at £550 pcm from 1 June 2025, producing a 7.33% gross yield based on a £90,000 purchase price. The tenant has occupied the home for around 20 years and the sale will be completed with the tenant remaining in place; no notice will be served prior to completion. That stability suits a hands-off investor seeking immediate income.

Important condition notes: heating is via a gas back-boiler and radiators, and walls are original solid brick with no known installed cavity insulation. The house will likely benefit from energy-efficiency improvements and some updating. The local area has higher-than-average crime levels and is classified as very deprived, factors investors should weigh alongside the rental stability and rental-growth potential if rents are brought to market level.

This is a straightforward, lower-entry-price investment in Sutton-in-Ashfield, close to local amenities and major routes (M1, A38). It suits a buyer comfortable holding a tenant long-term and budgeting for modest maintenance and possible retrofit works to improve rental value and energy performance.

Property Details

Brochure Descriptions

Image Descriptions

Floorplan Description

Rooms

Textual Property Features

Target Audience

AI Tags

Detected Visual Features

EPC Details

Nearby Schools

Nearest Bars And Restaurants

,,,,}

Nearest General Shops

,,}

Nearest Grocery shops

,,}

Nearest Supermarkets

,,}

Nearest Religious buildings

,,}

Nearest Medical buildings

,,,}

Nearest Leisure Facilities

,,,,}

Nearest Tourist attractions

,,}

Nearest Train stations

,,,,}

Nearest Bus stations and stops

,,,,}

Nearest Hotels

,,}

Tags

Local Market Stats

AirBnB Data

Similar Properties

Meta

High Res Images

Compatible Images

Low res Images

Thumbnails

Raw Images

High Res Floorplan Images

Compatible Floorplan Images

Low res Floorplan Images

FloorplanImages Thumbnail

Raw Floorplan Images