TN31 7NX - 3 bedroom terraced house for sale in 19 Military Road, Rye,…

View on Property Piper

3 bedroom terraced house for sale in 19 Military Road, Rye, East Sussex, TN31 7NX, TN31

Summary - 19, MILITARY ROAD, RYE TN31 7NX

3 bed 1 bath Terraced

Spacious three-bed Victorian terrace in Rye — major refurbishment required, sold at auction..
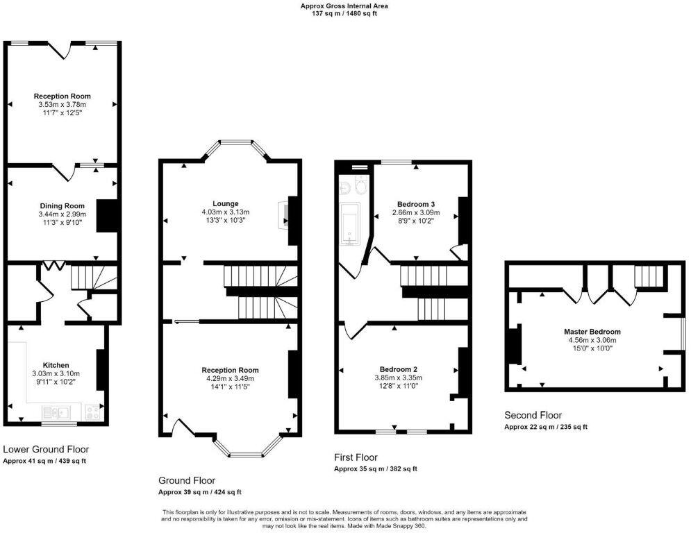
Large Victorian terrace, approx. 1,480 sq ft over four floors
Requires complete refurbishment throughout, including damp and damaged ceiling
Three bedrooms, two reception rooms, kitchen, dining room and bathroom
Small rear garden; garden and exterior need clearing and repair
Freehold tenure with very low flood risk and fast broadband
Sold at auction — 10% deposit and £1,200 + VAT buyer fee on exchange
Area records above-average crime; small plot may limit extensions
Completion typically required 28 days after auction fall of the hammer
A substantial three-bedroom Victorian terraced house in central Rye, offered at auction with clear renovation scope and upside for an investor or experienced DIY buyer. Spread over four floors and around 1,480 sq ft, the property retains period character (bay window, fireplace) but requires a complete refurbishment throughout.

The layout includes two reception rooms, dining room, kitchen, lounge, bathroom and three bedrooms, plus a small rear garden. Flood risk is very low and tenure is freehold—useful for buyers seeking a straightforward title. Broadband speeds are fast and mobile signal is excellent, supporting modern rental or remote-working needs.

Important negatives are explicit: visible damp and mould in the living room, damaged ceiling, and general dereliction in the garden requiring clearance and landscaping. The area records above-average crime and the plot is small, which may limit extension potential without planning. Buyers should factor in full refurbishment costs, statutory fees and auction conditions before bidding.

This lot is sold unconditionally at online auction on 29 October 2025. A 10% deposit (minimum £5,000) and a Buyer’s Administration Fee (£1,200 + VAT) are payable on exchange, with completion typically required within 28 days. Review the legal pack carefully for additional costs and title details before registering to bid.

Property Details

Image Descriptions

Floorplan Description

Rooms

Textual Property Features

Target Audience

AI Tags

Detected Visual Features

Nearby Schools

Nearest Bars And Restaurants

,,,,}

Nearest General Shops

,,}

Nearest Grocery shops

,,}

Nearest Supermarkets

,,}

Nearest Religious buildings

,,}

Nearest Medical buildings

,,,}

Nearest Leisure Facilities

,,,,}

Nearest Tourist attractions

,,}

Nearest Train stations

,,,,}

Nearest Bus stations and stops

,,,,}

Nearest Hotels

,,}

Tags

Local Market Stats

AirBnB Data

Similar Properties

Meta

High Res Images

Compatible Images

Low res Images

Thumbnails

Raw Images

High Res Floorplan Images

Compatible Floorplan Images

Low res Floorplan Images

FloorplanImages Thumbnail

Raw Floorplan Images