CB24 1BW - 4 bedroom detached house for sale in Stirling Road, Northst…

View on Property Piper

4 bedroom detached house for sale in Stirling Road, Northstowe, Cambridge, CB24

Summary - 42, Stirling Road, Northstowe, CAMBRIDGE CB24 1BW

4 bed 3 bath Detached

**Standout Features:**
- Modern detached family home built in 2018.
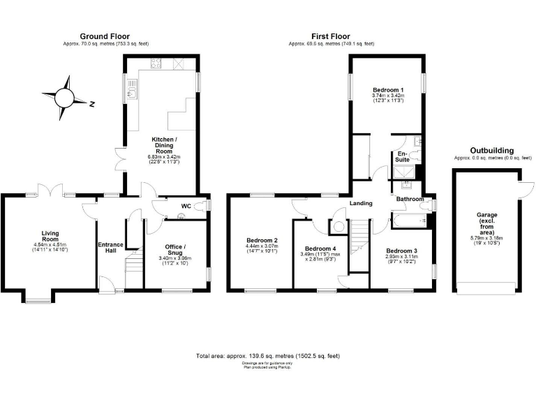
- Generous 1502 sqft living space with 4 double bedrooms and 2 bathrooms.
- Spacious kitchen/dining area, ideal for entertaining, with fitted appliances.
- Double aspect living room with French doors to the landscaped rear garden.
- Driveway parking and a detached garage.
- Additional outdoor space, including a corner plot with composite decking.

**Potential Concerns:**
- Council tax band E, indicating higher ongoing costs.
- Average thermal efficiency may require attention for long-term energy savings.

Experience contemporary family living in this stylish detached home nestled within the thriving community of Northstowe. Offering a substantial 1502 sqft of space across two levels, this property boasts four spacious double bedrooms, including a master suite with en-suite shower and dressing area. The heart of the home is a bright and functional kitchen/dining area, seamlessly flowing into the private landscaped garden—perfect for outdoor dining and relaxation.

Set in a well-connected location, you’ll benefit from swift access to Cambridge and surrounding amenities via the nearby A14 and guided bus routes. The community is designed for family living, with parks, playgrounds, and schools within easy reach. With the added bonus of a detached garage and driveway, this property promises convenience and comfort. Don’t miss out on the chance to secure this exclusive family home in a vibrant neighborhood—schedule your viewing today, as properties like this are bound to attract attention!

Property Details

Brochure Descriptions

Image Descriptions

Floorplan Description

Rooms

Textual Property Features

Detected Visual Features

EPC Details

Nearby Schools

Nearest Bars And Restaurants

,,,,}

Nearest General Shops

,,}

Nearest Grocery shops

,,}

Nearest Supermarkets

,,}

Nearest Religious buildings

,,}

Nearest Medical buildings

,,,}

Nearest Leisure Facilities

,,,,}

Nearest Tourist attractions

,,}

Nearest Train stations

,,,,}

Nearest Bus stations and stops

,,,,}

Nearest Hotels

,,}

Tags

Local Market Stats

Similar Properties

Meta

High Res Images

Compatible Images

Low res Images

Thumbnails

Raw Images

High Res Floorplan Images

Compatible Floorplan Images

Low res Floorplan Images

FloorplanImages Thumbnail

Raw Floorplan Images