Chain-free two-bedroom home backing onto golf course with garage conversion permission.
No onward chain — ready for prompt completion
Tucked at the end of a quiet cul-de-sac and backing onto East Berkshire Golf Club, this two-bedroom semi-detached home offers a peaceful, well-maintained base in a desirable Crowthorne neighbourhood. The living/dining room extends to c.20ft with double doors to a secluded rear garden that benefits from a pleasant wooded backdrop—perfect for relaxing or simple outdoor entertaining.
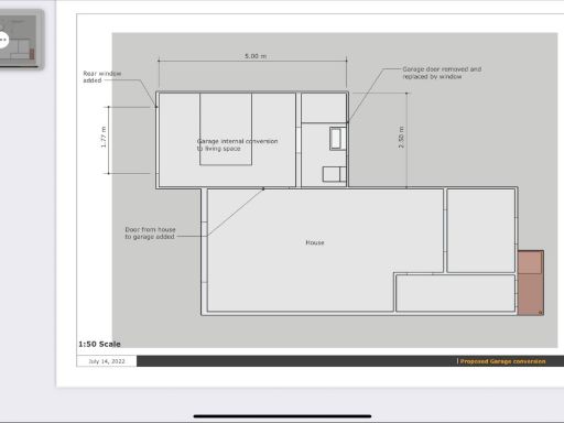
The house is offered with no onward chain, making it attractive for a first-time buyer or investor seeking quick entry. Gas central heating, double glazing and a single attached garage with driveway parking add everyday convenience. Planning permission was approved in July 2022 to convert the garage to habitable accommodation (App No: 221931), presenting straightforward scope to increase internal space or rental value.
Practical realities are straightforward: the home dates from the late 1980s with some dated decor and will suit buyers happy to modernise kitchen and finishes. The property has one family bathroom and a small plot, so space is economical compared with larger family homes; converting the garage would enlarge living space but reduce covered parking. EPC rating D and Council Tax Band D are noted for budgeting purposes.
Local amenities, fast broadband and very low crime make the location family-friendly. Nearby primary and independent schools and a short walk to the High Street and Crowthorne station add everyday convenience. Overall, this is a sensible, chain-free purchase with immediate potential for modest improvement or a planning-led extension of living space.
2 bedroom end of terrace house for sale in South Meadow, Crowthorne, Berkshire, RG45 7HP, RG45 — £370,000 • 2 bed • 1 bath • 824 ft²
3 bedroom end of terrace house for sale in Sweet Briar Crowthorne, Berkshire, RG45 6TJ, RG45 — £425,000 • 3 bed • 1 bath • 826 ft²
3 bedroom semi-detached house for sale in Lyon Road, Crowthorne, Berkshire, RG45 — £450,000 • 3 bed • 1 bath • 911 ft²
1 bedroom apartment for sale in St Andrews Close Crowthorne, Berkshire, RG45 6UP, RG45 — £185,000 • 1 bed • 1 bath • 517 ft²
2 bedroom end of terrace house for sale in Merryman Drive,Crowthorne,Berkshire,RG45 6TW, RG45 — £360,000 • 2 bed • 1 bath • 916 ft²
4 bedroom chalet for sale in Old Wokingham Road, Crowthorne, Berkshire, RG45 6SS, RG45 — £600,000 • 4 bed • 2 bath • 1708 ft²














































































