Large family home near station with driveway and private garden — note local area risks.
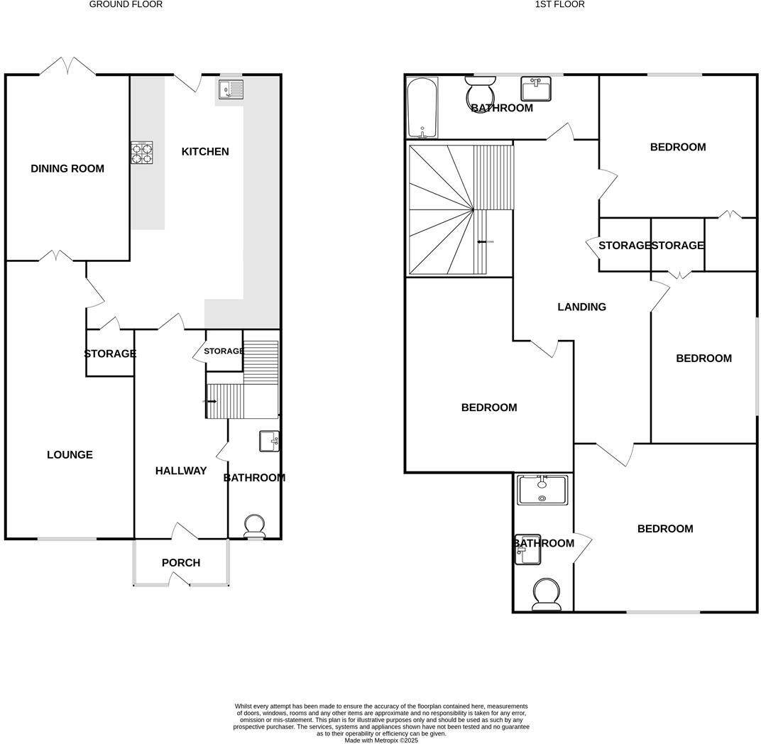
Four well-proportioned bedrooms including master with en-suite
Bright lounge and separate dining room with French doors to garden
Modern fitted kitchen with direct rear garden access
Ground-floor cloakroom; practical layout for families
Private driveway with dropped kerb for off-street parking
Small rear garden with side gated access; low maintenance
Solid brick walls (likely uninsulated) and double glazing pre-2002
Local area: very high crime and very deprived — verify suitability
This four-bedroom end-of-terrace on Rectory Park Drive is arranged over two floors and presented in good order by the current owner. The layout suits family life: a long front lounge linking to a dining room with French doors, a modern fitted kitchen with garden access, and a ground-floor cloakroom for daily convenience. The master bedroom includes an en-suite and three additional bedrooms provide flexible sleeping or workspace.
Outside, the house has neat kerb appeal, a private driveway with dropped kerb for off-street parking and a small, private rear garden with side gated access — practical for children and pets. The property was constructed in the early 20th century and retains solid brick walls and double glazing installed before 2002; these are serviceable but may benefit from targeted upgrades (wall insulation, newer glazing) to improve comfort and efficiency.
Practical location advantages include proximity to local shops, bus routes and the train station, plus several well-regarded primary and secondary schools within easy reach — factors that suit commuting families. Broadband and mobile signal are strong, supporting home working or study.
Important cautions are factual: the local area records very high crime levels and is described as very deprived, which will concern some buyers and affect long-term desirability. Some room measurements supplied appear inconsistent and should be verified. The property is freehold and, while well maintained, older construction and previously installed glazing mean buyers should allow for potential energy-efficiency and maintenance improvements.
4 bedroom semi-detached house for sale in St. Teresa's Close, Basildon, Essex, SS14 — £500,000 • 4 bed • 3 bath • 1304 ft²
4 bedroom detached house for sale in Althorne Close, Basildon, SS13 — £550,000 • 4 bed • 2 bath • 957 ft²
4 bedroom end of terrace house for sale in Waldringfield, Basildon, SS14 — £400,000 • 4 bed • 1 bath • 1012 ft²
4 bedroom end of terrace house for sale in Waldringfield, Basildon, SS14 — £400,000 • 4 bed • 1 bath • 1012 ft²
3 bedroom terraced house for sale in Nether Priors, Basildon, SS14 — £325,000 • 3 bed • 1 bath • 862 ft²
3 bedroom end of terrace house for sale in Warren Drive, Basildon, SS14 — £325,000 • 3 bed • 1 bath • 571 ft²


























































































