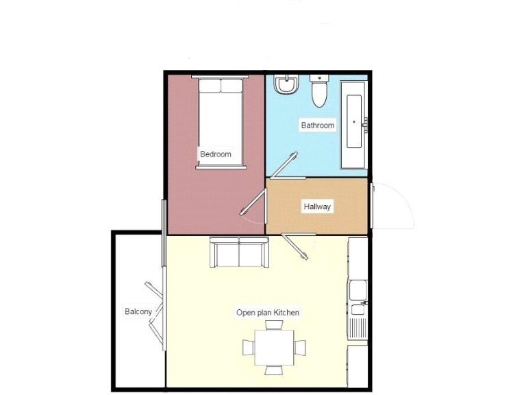
**Property Highlights:**
- 1 Bedroom, 1 Bathroom flat
- Second floor with a private balcony
- 981-year lease, no ground rent
- 24-hour concierge service
- Approval for easy access to Elephant & Castle Station
- EPC Grade C, offering good energy efficiency
- Chain-free sale enhances flexibility
This contemporary one-bedroom apartment is a fantastic opportunity, ideally suited for first-time buyers or investors seeking a property in a vibrant, multicultural neighborhood. Located just a stone's throw from Elephant & Castle Station, the open-plan living space features abundant natural light and stylish design, seamlessly leading to a private balcony for relaxed outdoor enjoyment. Enjoy the convenience of a 24-hour concierge and an affordable Council Tax Band C, along with the peace of mind that comes with a long 981-year lease.
While the area does have above-average crime rates and the property is located in a bustling inner-city environment, the abundance of amenities and excellent transport links outweigh potential concerns. With an ideal blend of comfort, security, and future renovation potential, this apartment offers a unique urban living experience. Don’t miss the chance to make this exclusive space your own—schedule a viewing today!
1 bedroom flat for sale in Churchyard Row, Elephant & Castle, SE11 — £425,000 • 1 bed • 1 bath • 546 ft²
1 bedroom flat for sale in Steedman Street, SE17 — £390,000 • 1 bed • 1 bath • 550 ft²
1 bedroom apartment for sale in Heygate Street, London, SE17 — £450,000 • 1 bed • 1 bath • 527 ft²
1 bedroom flat for sale in Rodney Road, Walworth, London, SE17 — £475,000 • 1 bed • 1 bath • 629 ft²
1 bedroom flat for sale in Waleorde Road, London, SE17 — £425,000 • 1 bed • 1 bath • 574 ft²
2 bedroom apartment for sale in One The Elephant, Elephant and Castle, SE1 — £800,000 • 2 bed • 2 bath • 817 ft²


























