Spacious period home with loft room, close to Tenby town and beaches..
Three-storey Victorian mid-terrace with loft conversion
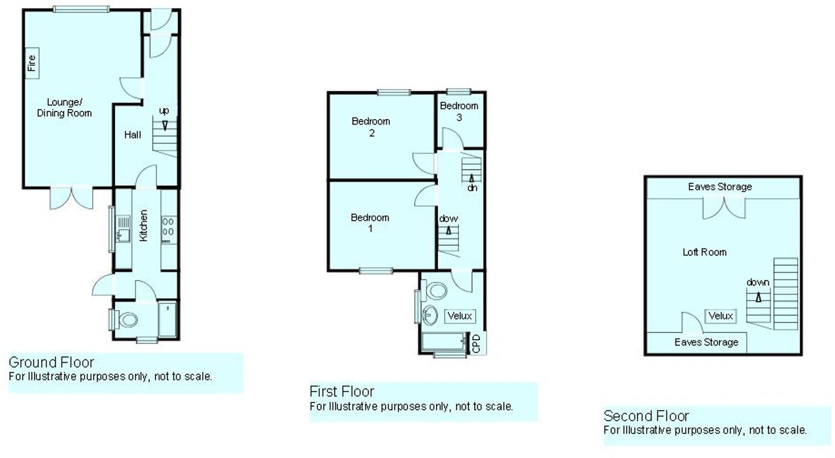
This immaculate three-storey Victorian mid-terrace sits within easy walking distance of Tenby town centre and beaches, offering generous living space over three floors plus a converted loft. Original period details — sash windows, cast-iron fireplace, tiled hearth and stained glass — combine with practical modern upgrades such as gas central heating, a Vaillant combi boiler and uPVC double glazing. The tiered rear garden and paved patio provide private outdoor space in a compact, low-maintenance layout ideal for socialising or relaxing.
The house works well as a family home with flexible room arrangements: large lounge/diner with French doors to the garden, a fitted kitchen with integrated appliances, three bedrooms on the first floor and a substantial loft room currently used as a fourth bedroom. Two bathrooms (shower room on the ground floor and first-floor bathroom) increase convenience for busy households or for rental use. Parking is limited by the town-centre setting and the plot size is small, but the location gives quick access to shops, transport and the Pembrokeshire Coast.
Buyers should note the property is of solid stone construction typical of c.1900–1929 and external walls are assumed uninsulated; further insulation work could improve energy performance. The home is offered freehold with an EPC rating D; prospective purchasers should allow for improvement costs if aiming for a higher efficiency band. Overall, the combination of period charm, large loft space and seaside location makes this a strong choice for families or investors seeking a ready-to-live-in, characterful property close to Tenby amenities.
3 bedroom terraced house for sale in 13 Park Place, Tenby, SA70 — £350,000 • 3 bed • 2 bath • 1197 ft²
3 bedroom terraced house for sale in 2 Mayfield Drive, Tenby, SA70 — £449,950 • 3 bed • 1 bath • 1485 ft²
3 bedroom terraced house for sale in Lobster Cottage, 3 Rocky Park, Tenby, SA70 7LH, SA70 — £385,000 • 3 bed • 2 bath • 1141 ft²
4 bedroom end of terrace house for sale in 4 Greenhill Avenue, Tenby, SA70 — £425,000 • 4 bed • 3 bath • 1576 ft²
4 bedroom terraced house for sale in Church Park, Tenby, Pembrokeshire, SA70 — £450,000 • 4 bed • 2 bath
3 bedroom end of terrace house for sale in 16 Clareston Road, Tenby, SA70 — £380,000 • 3 bed • 1 bath • 818 ft²






































































