**Standout Features:**
- Charming 3-bedroom semi-detached house with character features
- Peaceful location backing onto fields near Nantwich
- Recently renovated, blending period charm with modern comforts
- Open-plan kitchen-diner, spacious lounge with bifolding doors
- Gated entrance, ample off-street parking, and large garden
- Easy access to local amenities and transport links
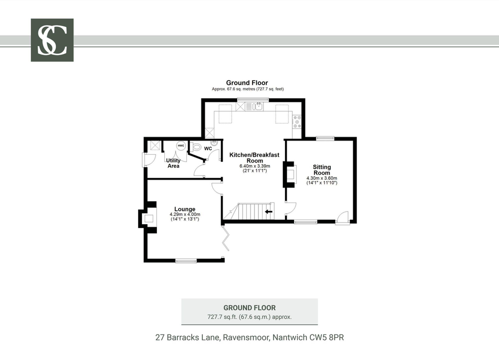
Nestled in the picturesque Cheshire hamlet of Ravensmoor, this beautifully renovated 3-bedroom semi-detached home at 27 Barracks Lane offers a unique blend of classic charm and contemporary living. With its inviting Cheshire brick exterior and modern interior upgrades, this property features expansive skylights that flood the open kitchen-diner with natural light, a heartwarming lounge boasting a multi-fuel stove, and versatile reception rooms ideal for family gatherings or quiet relaxation.
Enjoy stunning rural views from your private garden complete with a spacious lawn and cozy pagoda, perfect for al fresco dining throughout the year. The master bedroom with its ensuite shower room, along with additional well-appointed bedrooms, ensures comfort for the whole family. Set in a tranquil environment, just moments from the vibrant community of Nantwich, with its medieval architecture and local amenities, this property is ideal for families seeking peace without sacrificing convenience.
While the aesthetic charm is undeniable, potential buyers should be mindful of the property's traditional construction, which may entail higher maintenance considerations. Nonetheless, with such unique character and flexible options for family living or investment opportunities, this home is a rare find in today’s market. Don’t miss out on the chance to secure this idyllic rural retreat; opportunities like this are few and far between!
3 bedroom semi-detached house for sale in Barracks Lane, Ravensmoor, CW5 — £375,000 • 3 bed • 2 bath • 1130 ft²
3 bedroom semi-detached house for sale in Whitchurch Road, Nantwich, CW5 — £300,000 • 3 bed • 2 bath • 2000 ft²
3 bedroom semi-detached house for sale in The Green, Wrenbury, Nantwich, CW5 — £375,000 • 3 bed • 2 bath • 1577 ft²
3 bedroom semi-detached house for sale in Barracks Lane, Ravensmoor, Nantwich, CW5 — £335,000 • 3 bed • 1 bath • 1629 ft²
4 bedroom semi-detached house for sale in Crewe Road, Willaston, Cheshire, CW5 — £300,000 • 4 bed • 2 bath • 1340 ft²
2 bedroom semi-detached house for sale in Charming character property in Davenham's most sought after address., CW9 — £300,000 • 2 bed • 1 bath • 1109 ft²










































































































































