**Standout Features:**
- Three well-proportioned bedrooms, including two spacious doubles
- Modern kitchen/diner and full-depth lounge with garden access
- Elevated views of Wartbarrow Fell from front-facing bedrooms
- Off-road parking for two vehicles
- Fully enclosed rear garden, ideal for outdoor activities
- Excellent village amenities within walking distance
**Concerns:**
- Local Occupancy Clause applies
- Average mobile signal and specific details on broadband speed
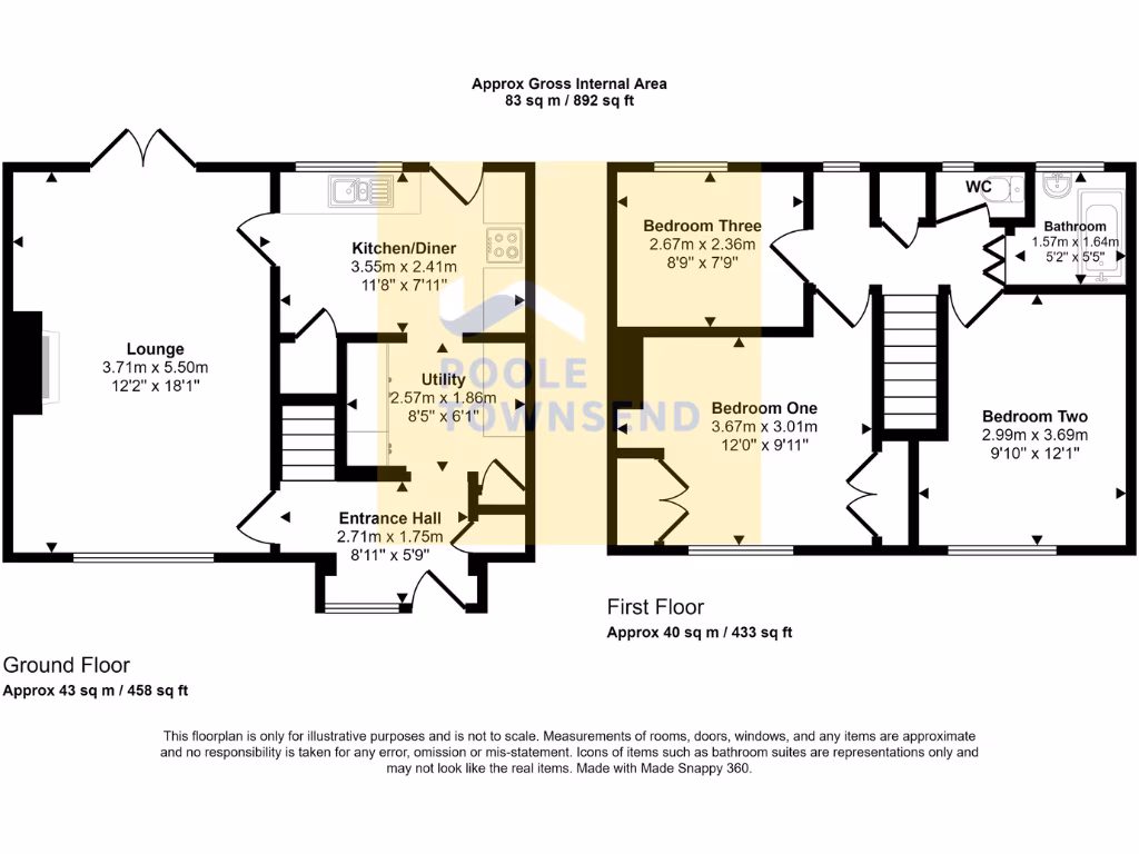
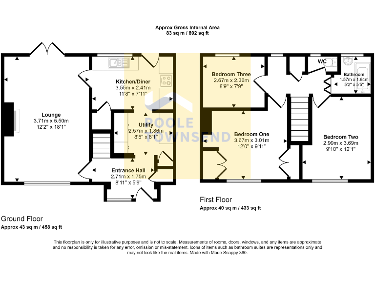
Nestled in a tranquil cul-de-sac in the charming village of Flookburgh, this delightful three-bedroom terraced house offers an ideal opportunity for first-time buyers and families alike. Features include a spacious full-depth lounge with sliding doors leading to a fully enclosed garden, creating a seamless indoor-outdoor living experience. A modern kitchen/diner is perfect for family meals, and a utility room adds extra convenience. Upstairs, two generous double bedrooms boast stunning views of Wartbarrow Fell, with a third smaller bedroom accommodating guests or a home office.
The property benefits from off-road parking for two vehicles and is just a short stroll from local amenities including a primary school, shops, and a railway station for easy commuting. Families will appreciate the close-knit community and good Ofsted-rated schools nearby. However, please note that a Local Occupancy Clause applies, which may influence future buyers. With its blend of comfort, potential, and idyllic rural living, this home invites you to envision a nurturing family life in a peaceful setting. Don’t miss your chance to call this serene escape your own—schedule a viewing today!
3 bedroom end of terrace house for sale in 7 Green Lane, Flookburgh, Grange, LA11 — £240,000 • 3 bed • 1 bath • 680 ft²
3 bedroom semi-detached house for sale in Moorside, Flookburgh, Grange over Sands, LA11 — £180,000 • 3 bed • 1 bath • 682 ft²
2 bedroom semi-detached house for sale in Field Head Place, Flookburgh, LA11 — £200,000 • 2 bed • 1 bath • 850 ft²
3 bedroom detached house for sale in 27A Main Street, Flookburgh, Cumbria, LA11 — £290,000 • 3 bed • 1 bath • 1249 ft²
2 bedroom terraced house for sale in 9 Stockdale Farm Moor Lane, Flookburgh, LA11 — £260,000 • 2 bed • 1 bath • 1410 ft²
3 bedroom semi-detached house for sale in 23 Marne Avenue, Flookburgh, Grange over Sands, LA11 — £220,000 • 3 bed • 1 bath • 971 ft²


























































































