**Standout Features:**
- Prime central Blackpool location (FY1 1RW)
- Block of three fully managed modern self-contained flats
- Immediate rental income with high demand from tenants in tourism and hospitality
- Strong financial yield: Gross yield of 11.51%, net yield of 10.29%
- Potential for further income through rent reviews or holiday-let conversions
- Well-positioned near seafront, Blackpool North train station, and various amenities
**Concise Summary:**
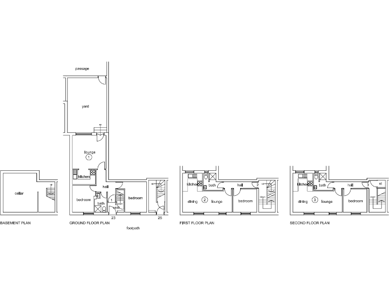
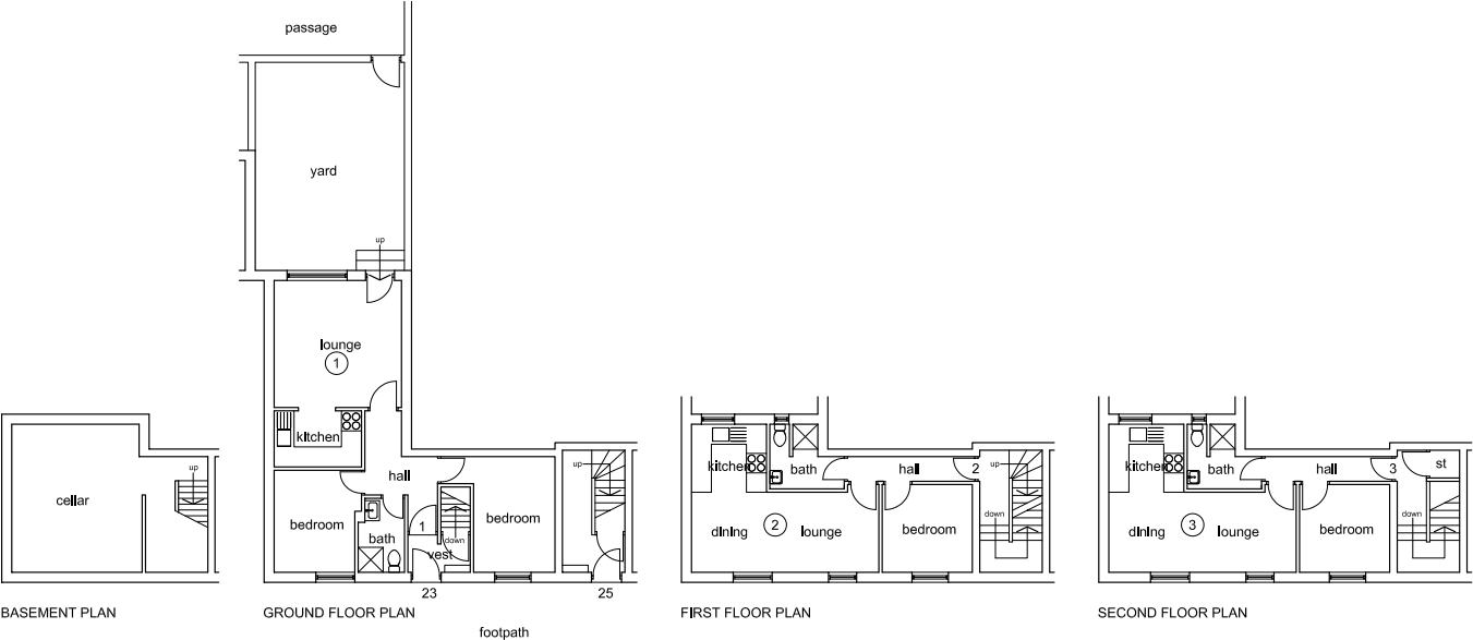
Discover a prime investment opportunity in the heart of Blackpool with this detached block of three fully let apartments, generating immediate rental income. Comprising a spacious two-bedroom garden flat and two one-bedroom flats above, this property caters to a broad tenant demographic, particularly from the thriving tourism and hospitality sectors. Enjoy the benefits of an impressive gross yield of 11.51% and explore potential for increased returns through future holiday-let conversions in a notable regeneration area.
Though the property shows signs of mid-century charm, some modernization may be necessary, presenting a canvas for value enhancement. The urban location, coupled with easy access to essential amenities and public transport, ensures a sought-after rental spot. Take advantage of this rare opportunity while it lasts. For video tours or to explore this investment further, don’t hesitate to inquire today.



















































































