Contemporary four-bedroom house in a peaceful parkland setting, ideal for families.
Four double bedrooms with principal en-suite and family bathroom
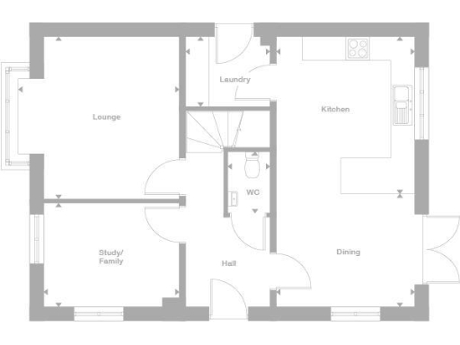
Open-plan kitchen/dining area with French doors to garden
Bay-windowed lounge plus separate study/family room
Laundry room, single garage and off-street parking included
Covered by 10-year NHBC warranty from 5-star builder
Relatively compact overall size ~983 sq ft; rooms are moderate
Local broadband speeds reported slow — consider upgrade options
Annual service charge £499.73 for communal maintenance
This four-bedroom detached new-build offers practical family living with a light-filled layout and modern finishes. The open-plan kitchen/dining area opens via French doors to a decent rear garden, while a bay-windowed lounge and a dedicated study/family room give flexible living space for work and play. The principal bedroom benefits from an en-suite and three further bedrooms provide comfortable sleeping arrangements for children or guests.
Built by a five-star homebuilder and covered by a 10-year NHBC warranty, the house promises contemporary construction standards and energy-efficient design within a parkland-style development adjacent to Hadden Heights Golf Club. Off-street parking and a single garage add useful storage and parking options. Local amenities, including primary and secondary schools rated Good to Outstanding, are within easy reach.
Buyers should note the home is relatively compact at around 983 sq ft, so rooms are moderate in size despite the four-bedroom layout. Broadband speeds in the area are reported slow, which may affect home working without an upgraded connection. An annual service charge of £499.73 applies for communal areas and maintenance.
Overall, this home suits families seeking a modern, low-maintenance property in a quiet, green setting with good schools nearby. It represents a straightforward move-in option with scope to personalise fixtures and landscaping to suit longer-term family needs.
4 bedroom detached house for sale in Lady Grove Road,
Didcot,
OX11 9BP, OX11 — £669,995 • 4 bed • 1 bath • 1100 ft²
4 bedroom detached house for sale in Lady Grove Road,
Didcot,
OX11 9BP, OX11 — £579,995 • 4 bed • 1 bath • 983 ft²
4 bedroom semi-detached house for sale in Lady Grove Road,
Didcot,
OX11 9BP, OX11 — £585,000 • 4 bed • 1 bath • 983 ft²
4 bedroom detached house for sale in Lady Grove Road,
Didcot,
OX11 9BP, OX11 — £650,000 • 4 bed • 1 bath • 1100 ft²
4 bedroom detached house for sale in Lady Grove Road,
Didcot,
OX11 9BP, OX11 — £599,995 • 4 bed • 1 bath • 983 ft²
4 bedroom detached house for sale in Lady Grove Road,
Didcot,
OX11 9BP, OX11 — £765,995 • 4 bed • 1 bath • 1543 ft²










































