Chain-free three-bedroom terrace with garden and extension potential in SE17..
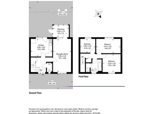
Chain-free freehold terraced house, approx. 915 sqft
Three generous bedrooms, suitable for family or sharers
Private rear garden — small, low-maintenance paved plot
Potential to extend (STPP) to increase space/value
Presented in modern neutral condition — mostly move-in ready
High local crime and very deprived area — affects demand
Council Tax band above average — factor in running costs
On-street/resident parking; excellent mobile and fast broadband
Set on a quiet stretch of SE17, this three-bedroom mid-terraced freehold offers a straightforward entry into London ownership or a lettable investment. The house is chain-free and presented in modern, neutral condition throughout, with a bright reception room and a contemporary kitchen ready for everyday living.
Practical positives include a private rear garden, potential to extend subject to planning (STPP), and excellent transport links with Kennington station nearby. The property sits within reach of well-regarded primary schools such as Crampton Primary, making it a realistic option for young families or sharers wanting local schooling and amenities.
Buyers should note the house is set in an area with high crime rates and very high deprivation indicators, which may affect resale profile and rental demand. The plot is small and the home is average-sized overall (approx. 915 sqft), so expansion options are limited to lateral or rear extensions subject to planning. Council Tax is above average.
For first-time buyers seeking a move-in-ready London home or investors looking for steady rental potential, this terrace offers a practical, low-maintenance base with room to add value through modest improvements or an approved extension.
3 bedroom house for sale in Ambergate Street, London, SE17 — £750,000 • 3 bed • 1 bath • 894 ft²
3 bedroom terraced house for sale in Braganza Street, London, SE17 — £850,000 • 3 bed • 1 bath • 948 ft²
3 bedroom terraced house for sale in Olney Road, London, SE17 — £669,950 • 3 bed • 2 bath • 623 ft²
4 bedroom end of terrace house for sale in Brandon Street, London, SE17 — £775,000 • 4 bed • 2 bath • 1383 ft²
4 bedroom terraced house for sale in Langdale Close, Pelier Street, Walworth, London, SE17 — £700,000 • 4 bed • 1 bath • 1109 ft²
3 bedroom house for sale in Minnow Walk, Walworth, London, SE17 — £675,000 • 3 bed • 1 bath • 981 ft²


















































