**Standout Features:**
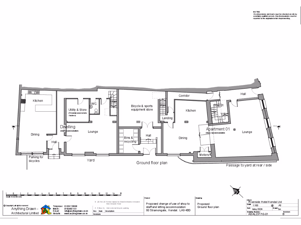
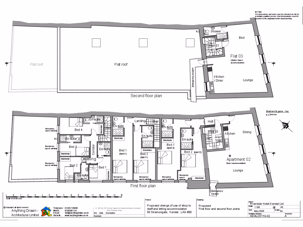
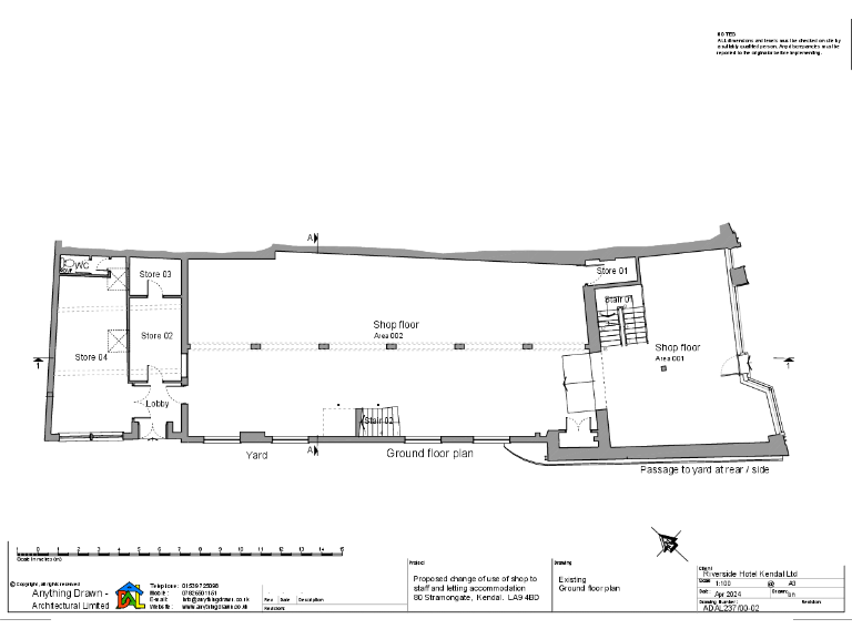
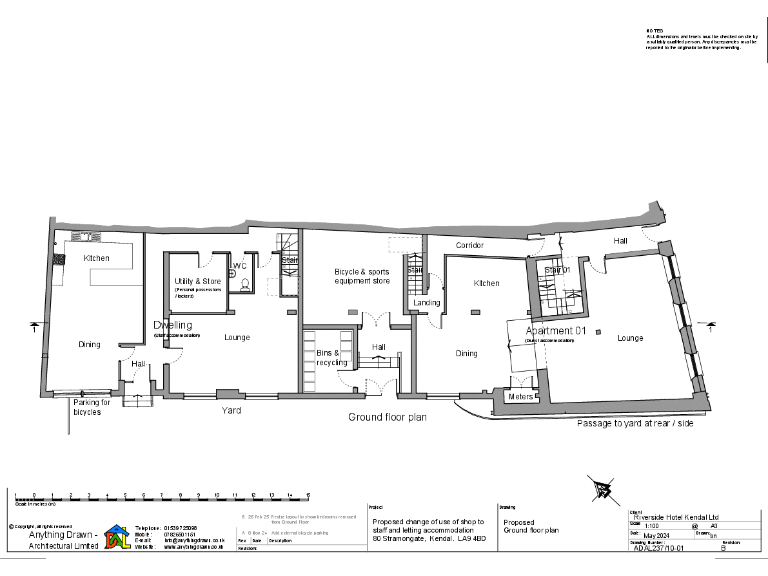
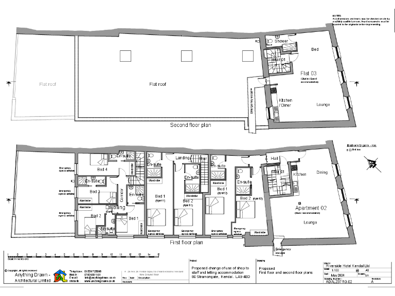
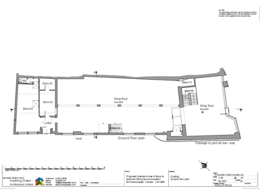
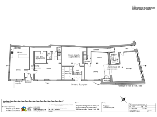
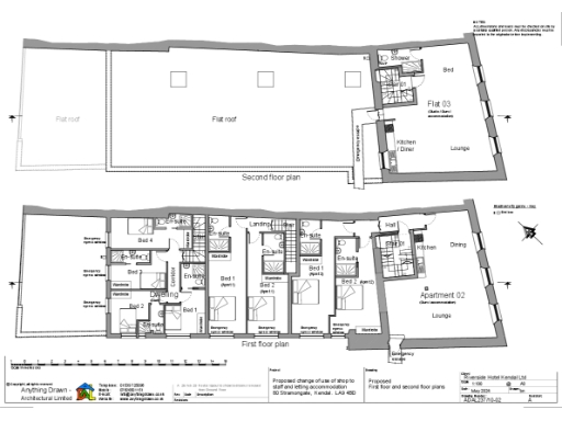
- **Spacious Retail Showroom:** Three-storey building with 6,787 sq ft of usable space.
- **Prime Location:** Centrally positioned on Stramongate in bustling Kendal, close to various shops, cafés, and services.
- **Investment Potential:** Planning permission granted for conversion to holiday lets/staff accommodation, offering flexibility for modern use.
- **Historic Architecture:** Elegant stone and slate façade with large windows, blending traditional design with contemporary possibilities.
- **Low Capital Value:** Offered at £240,000, equating to approximately £35.36 per sq ft, with no VAT applicable.
**Summary:**
Discover a premier retail property at 80 Stramongate, Kendal, offering extensive space and significant redevelopment potential. This three-storey stone building features an impressive internal layout that can easily accommodate retail use, or take advantage of the granted planning permission for conversion into short-term holiday lets and staff accommodations, making it ideal for investors or developers seeking lucrative opportunities in a sought-after location.
Nestled in the vibrant heart of Kendal, the property boasts excellent visibility and foot traffic, with nearby amenities including shops, restaurants, and public transport links, enhancing its appeal for both retail and residential uses. Despite its historic charm, the building presents a blank canvas for modern redevelopment, making it a unique offering for forward-thinking buyers. With a competitive price of £240,000, seize this opportunity to own a key piece of Kendal's commercial landscape—this is more than just a property; it’s a chance to create a thriving business or secure a lucrative investment.
Act quickly, as opportunities like this in prime locations don’t last long!
High street retail property for sale in 33 Market Place, Kendal, Cumbria, LA9 — £375,000 • 1 bed • 1 bath • 1928 ft²
High street retail property for sale in 25 Main Street, Sedbergh, Cumbria, LA10 5BN, LA10 — £180,000 • 1 bed • 1 bath • 1276 ft²
Office for sale in 114-116 Stricklandgate, Kendal, Cumbria LA9 4QA, LA9 — £675,000 • 1 bed • 1 bath • 5843 ft²
High street retail property for sale in 37 Highgate, Kendal, Cumbria, LA9 — £325,000 • 1 bed • 1 bath • 2906 ft²
Commercial property for sale in 79 Highgate, Kendal, Cumbria, LA9 — £180,000 • 1 bed • 1 bath • 734 ft²
Commercial property for sale in 8 Stricklandgate, Kendal, Cumbria, LA9 4ND, LA9 — £595,000 • 1 bed • 1 bath • 1632 ft²






































