CF39 9LS - 3 bedroom terraced house for sale in River Terrace, Porth,…

View on Property Piper

3 bedroom terraced house for sale in River Terrace, Porth, , CF39

Summary - 8 RIVER TERRACE PORTH CF39 9LS

3 bed 1 bath Terraced

**Standout Features:**
- Recently refurbished throughout
- South-facing garden
- Detached garage
- Ideal for first-time buyers or rental investment
- No onward chain
- Low council tax band A

This charming mid-terraced Victorian home in the popular Porth area presents an excellent opportunity for first-time buyers or savvy investors, fully compliant for rental. With three bedrooms and recently updated contemporary interiors, including a modern kitchen with herringbone vinyl flooring and a spacious living and dining area, this property seamlessly blends comfort with practicality. Enjoy the benefits of a south-facing garden, perfect for sun lovers, and a detached garage, providing additional storage or workshop space.

Set within close proximity to Porth town center, you’ll find various local amenities just minutes away, alongside primary and secondary schools, making it ideal for families. The property boasts mains gas heating and double glazing, ensuring comfort year-round. While the home has been extensively refurbished, it's worth noting that the walls lack insulation, a potential area for further improvement. Overall, this delightful home is ready for immediate move-in, providing a low-maintenance lifestyle with excellent commuting access to Cardiff, Newport, and Swansea. Don’t miss out on the chance to secure a remarkable first-time buy—this property won’t last long!

Property Details

Image Descriptions

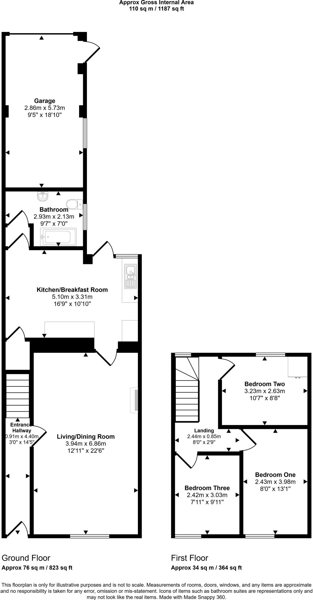
Floorplan Description

Rooms

Textual Property Features

Detected Visual Features

EPC Details

Nearest Bars And Restaurants

,,,,}

Nearest General Shops

,,}

Nearest Grocery shops

,,}

Nearest Supermarkets

,,}

Nearest Religious buildings

,,}

Nearest Medical buildings

,,,}

Nearest Airports

}

Nearest Leisure Facilities

,,,,}

Nearest Tourist attractions

,,}

Nearest Train stations

,,,,}

Nearest Bus stations and stops

,,,,}

Nearest Hotels

,,}

Tags

Local Market Stats

Similar Properties

Meta

High Res Images

Compatible Images

Low res Images

Thumbnails

Raw Images

High Res Floorplan Images

Compatible Floorplan Images

Low res Floorplan Images

FloorplanImages Thumbnail

Raw Floorplan Images