Auction chance: period two-bed needing full refurbishment, strong rental yield potential.
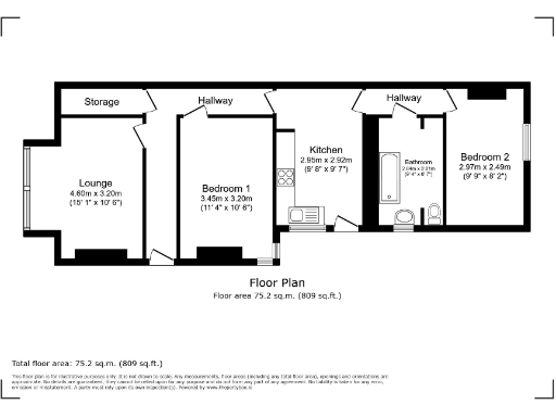
End-terrace two-bedroom apartment, approx. 809 sq ft
Requires full refurbishment and modernisation throughout
Leasehold with ~75 years remaining — lenders may refuse mortgages
To be sold at auction — cash or specialist finance recommended
Estimated rent £1,000–£1,100 pcm; gross yield ~9.2–10.2% PAX
Built c.1900–1929 with period features; solid brick walls, no insulation
High local crime and area deprivation — consider tenant risk/insurance
Good transport, excellent mobile signal and fast broadband
A vacant two-bedroom apartment in an Edwardian end-terrace close to Westcliff town centre and Southend Central station. The flat (approx. 809 sq ft) offers clear rental potential — estimated at £1,000–£1,100 pcm, giving a gross yield around 9.2–10.2% — making it appropriate for investors prepared to refurbish and manage tenancy risks.
The property requires full renovation: cosmetic updating, likely insulation and heating checks, and general modernisation. Constructed c.1900–1929 with solid brick walls and double glazing (install date unknown), the building retains period character such as bay windows and high ceilings that can enhance lettability once upgraded.
Important cautions: the lease has about 75 years remaining which may restrict mortgage availability and reduce buyer pool; the lot will be sold at auction. The local area shows higher crime levels and relative deprivation, so pricing and tenant selection will be important. Council tax is low and transport and mobile/broadband connections are strong.
This is a value-add opportunity for a cash buyer or investor able to buy at auction, carry out refurbishment and either let for income or resell post-refurb. For owner-occupiers, the lease length and renovation requirement mean careful mortgage and budget planning are essential.
2 bedroom apartment for sale in Shakespeare Drive, Westcliff-on-Sea, Essex, SS0 — £130,000 • 2 bed • 1 bath • 679 ft²
2 bedroom flat for sale in 108 Chalkwell Lodge, London Road, Westcliff-on-Sea, Essex, SS0 9HX, SS0 — £130,000 • 2 bed • 1 bath • 584 ft²
1 bedroom flat for sale in Flat 2, 192 Hainault Avenue, Westcliff-on-Sea, Southend-on-Sea, SS0 9EX, SS0 — £95,000 • 1 bed • 1 bath • 506 ft²
2 bedroom flat for sale in 75A Tyrrel Drive, Southend-on-Sea, Essex, SS1 2LN, SS1 — £110,000 • 2 bed • 1 bath • 549 ft²
1 bedroom flat for sale in Flat 4, 28 Cobham Road, Westcliff-on-Sea, Essex, SS0 8EA, SS0 — £100,000 • 1 bed • 1 bath • 449 ft²
3 bedroom flat for sale in 420a London Road, Westcliff on Sea, Essex, SS0 9LA, SS0 — £120,000 • 3 bed • 1 bath • 776 ft²






























































































