**Standout Features:**
- Two well-proportioned double bedrooms
- Spacious lounge/diner with patio doors to the rear garden
- Convenient downstairs wet room
- Well-maintained throughout with extended living space
- Chain-free sale for quick transactions
- Close to schools and local amenities
- Guide Price: £290,000-£300,000
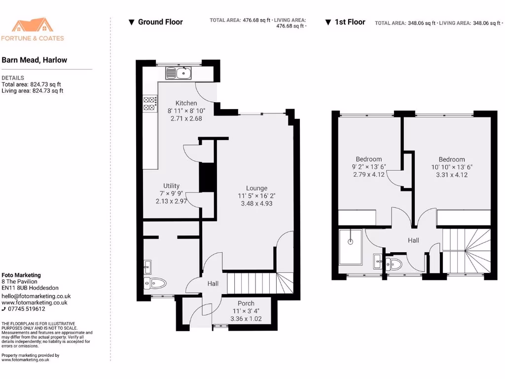
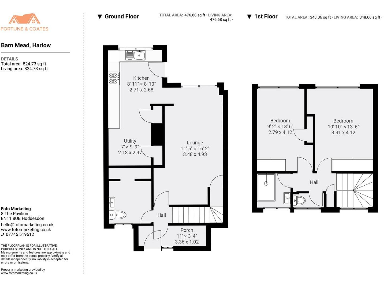
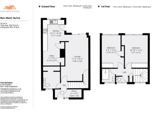
Nestled in the popular Barn Mead area of Harlow, this thoughtfully extended two-bedroom mid-terraced family home makes an appealing choice for first-time buyers and small families alike. The property is conveniently located near schools, amenities, and transport links, offering effortless access to Harlow Town Centre and beyond. Inside, the bright and spacious lounge/diner flows seamlessly to a private rear garden featuring a lovely patio area for entertaining and a lawn surrounded by mature shrubs.
The kitchen boasts ample storage with a range of wall and base units, complemented by a separate utility area. Upstairs, you will find two spacious double bedrooms and a family bathroom, making this an ideal setup for comfortable living. However, potential buyers should note that while the property is well-maintained, certain areas may benefit from some modernisation. With its chain-free status and great location, this home offers an exciting opportunity—act quickly to secure your viewing and envision your future in this delightful space!
2 bedroom end of terrace house for sale in Halling Hill, Harlow, CM20 — £300,000 • 2 bed • 1 bath • 759 ft²
2 bedroom terraced house for sale in Waterhouse Moor, Harlow, CM18 — £300,000 • 2 bed • 1 bath • 714 ft²
2 bedroom terraced house for sale in Waterhouse Moor, Harlow, CM18 — £290,000 • 2 bed • 1 bath
2 bedroom end of terrace house for sale in Great Brays, Harlow, CM18 — £315,000 • 2 bed • 1 bath • 705 ft²
3 bedroom terraced house for sale in Tylney Croft, Harlow, CM19 — £375,000 • 3 bed • 2 bath • 921 ft²
2 bedroom terraced house for sale in Long Ley, Harlow, CM20 — £350,000 • 2 bed • 1 bath • 982 ft²






























































