Chain-free, characterful one-bedroom flat with high ceilings and RICS valuation above asking price..
Chain-free vacant freehold apartment in Victorian granite building
Independent RICS valuation £90,000; marketing price £85,000
High ceilings and period character throughout
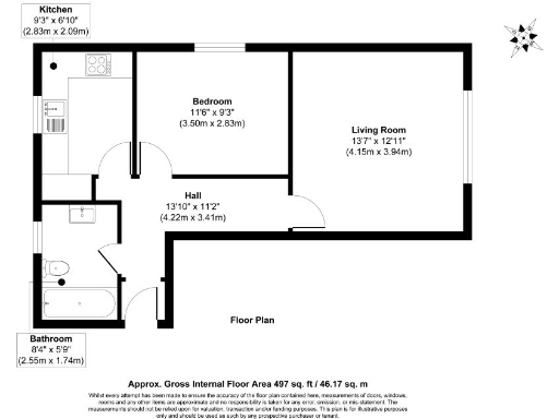
One double bedroom; spacious reception and kitchen/diner
Approx 497 sq ft — average-sized apartment
Interior shows dated hallway finishes; cosmetic updating likely needed
Council Tax Band B (relatively low); no flood risk
Excellent mobile signal but average broadband speeds; area deprivation noted
A chain-free, one-bedroom apartment set within a Victorian granite building, offering generous ceiling heights and straightforward living across approximately 497 sq ft. The flat is vacant and freehold, with a RICS independent valuation at £90,000 while the current asking/marketing price is £85,000 — a potential entry-level purchase or buy-to-let opportunity in Kintore/Inverurie.
Internally the layout is traditional and well-proportioned: a spacious reception room, fitted kitchen with dining area, double bedroom and three-piece bathroom. High ceilings and period exterior character give the apartment charm, but some internal areas (mid-20th-century hallway finishes) are dated and likely to benefit from cosmetic updating to maximise value and comfort.
Practical details: Council Tax Band B (relatively cheap), no flooding risk, excellent mobile signal but average broadband speeds. The Home Report is available. Buyers should arrange standard checks on services and electrics as installations have not been independently tested. The property sits close to local amenities and transport links, making it convenient for day-to-day needs.
This property will suit a first-time buyer seeking an affordable, characterful flat with potential, or an investor targeting a low-entry-cost rental. Note the wider area is classified as having higher deprivation, which will influence rental demand and future capital growth; viewings are recommended for those interested.
2 bedroom apartment for sale in Bankhead Avenue, Aberdeen, Aberdeenshire, AB21 — £85,000 • 2 bed • 1 bath • 559 ft²
2 bedroom flat for sale in Western Road, Inverurie, AB51 — £120,000 • 2 bed • 1 bath • 689 ft²
2 bedroom apartment for sale in Betteral Road, Kingseat, Newmachar, AB21 — £145,000 • 2 bed • 2 bath
2 bedroom flat for sale in Ash-Hill Drive, Cornhill, Aberdeen, AB16 — £45,000 • 2 bed • 1 bath • 732 ft²
1 bedroom apartment for sale in 32 Don Street, Woodside, Aberdeen, AB24 2RS, AB24 — £55,000 • 1 bed • 1 bath






















































