RM17 5TB - 4 bedroom semidetached house for sale in Ridgeway, Grays, R…

View on Property Piper

4 bedroom semi-detached house for sale in Ridgeway, Grays, RM17

Summary - 15 RIDGEWAY GRAYS RM17 5TB

4 bed 3 bath Semi-Detached

**Standout Features:**
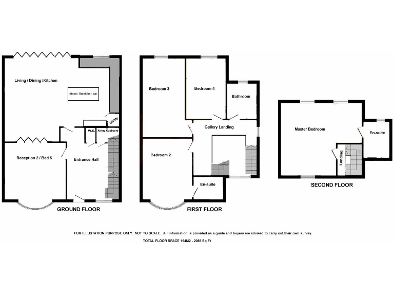
- 4 double bedrooms, including a spacious master suite with en-suite bathroom
- 3 modern bathrooms (2 en-suites) plus a ground floor cloakroom
- Newly refurbished to a high standard with stylish finishes
- Expansive open-plan kitchen/breakfast area with integrated appliances, a large island, and bi-folding doors to the garden
- Second reception room or potential fifth bedroom
- Low-maintenance rear garden with outdoor dining space
- Off-street parking available on the driveway
- Conveniently located in the exclusive North Grays area with excellent transport links to A127/A13 and M25

Discover the epitome of family living in this stunning semi-detached Tudor-style home with ample space for the whole family. Immaculately presented and cleverly reconfigured, this property boasts four generous double bedrooms and three well-appointed bathrooms, two of which include en-suite facilities. The heart of the home is the modern open-plan kitchen, equipped with integrated Neff appliances and a magnificent island perfect for hosting or family breakfasts. The bi-folding doors effortlessly connect the interior to the low-maintenance garden, providing an ideal setting for outdoor entertaining or relaxation.

While the property shines with its contemporary finishes and efficient design, it's also worth noting the absence of insulation in solid brick walls which could present a future renovation opportunity for better energy efficiency. Located in a family-friendly neighborhood with access to highly rated schools and essential amenities nearby, don't miss the chance to own this exceptional property, priced competitively between £600,000 - £625,000. Act fast, as opportunities like this don’t remain on the market for long!

Property Details

Brochure Descriptions

Image Descriptions

Floorplan Description

Rooms

Textual Property Features

Detected Visual Features

EPC Details

Nearby Schools

Nearest Bars And Restaurants

,,,,}

Nearest General Shops

,,}

Nearest Grocery shops

,,}

Nearest Supermarkets

,,}

Nearest Religious buildings

,,}

Nearest Medical buildings

,,,}

Nearest Airports

,,}

Nearest Leisure Facilities

,,,,}

Nearest Tourist attractions

,,}

Nearest Train stations

,,,,}

Nearest Bus stations and stops

,,,,}

Nearest Hotels

,,}

Tags

Local Market Stats

Similar Properties

Meta

High Res Images

Compatible Images

Low res Images

Thumbnails

Raw Images

High Res Floorplan Images

Compatible Floorplan Images

Low res Floorplan Images

FloorplanImages Thumbnail

Raw Floorplan Images