Large plot with separate access and development potential.
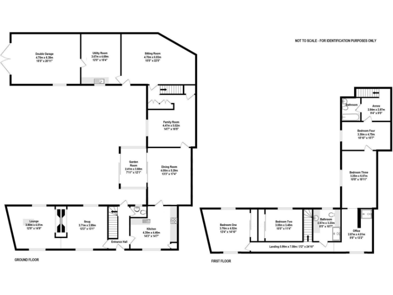
Over 3,000 sq ft of flexible period accommodation
A substantial Georgian terrace in Belton-in-Rutland, this freehold property offers over 3,000 sq ft of flexible living space across two storeys. With five reception rooms, four/five double bedrooms and two bath/shower rooms, the house has strong structural character — exposed stonework, beams and sash windows — that will appeal to buyers looking for period detail.
The large, established and privately screened plot includes separate access from Back Lane and a double garage/workshop, giving genuine scope for extension or subdivision into two dwellings subject to planning (STPP). The layout already supports multi-generation living or rental income potential thanks to an annex and multiple reception areas.
This is a renovation and development project: the house requires comprehensive refurbishment, currently heated by an oil boiler and carrying an Energy Rating of F. Expect upgrade costs for heating, insulation and likely electrical and plumbing works; broadband speeds are slow and council tax is Band G. The property is offered chain-free, in a desirable conservation village a short drive from Oakham and Rutland Water.
For an investor or buyer prepared to undertake works, the combination of size, plot, separate access and village location creates a rare opportunity to add value — either by restoring a large family home to its former character or by pursuing a planning-led conversion, subject to consents.
3 bedroom semi-detached house for sale in Lambley Lodge Rd, Belton in Rutland, LE15 — £550,000 • 3 bed • 2 bath • 1441 ft²
2 bedroom bungalow for sale in Belton Mews, Belton, Rutland, LE15 — £280,000 • 2 bed • 2 bath • 1075 ft²
8 bedroom end of terrace house for sale in Chapel Street, Belton In Rutland, Oakham, LE15 — £995,000 • 8 bed • 2 bath • 4371 ft²
3 bedroom semi-detached house for sale in Goughs Lane, Belton In Rutland, Oakham, LE15 — £300,000 • 3 bed • 1 bath • 904 ft²
5 bedroom detached house for sale in Main Street, Greetham, Oakham, LE15 — £590,000 • 5 bed • 4 bath • 3700 ft²
4 bedroom detached bungalow for sale in Goughs Lane, Belton In Rutland, Oakham, LE15 — £380,000 • 4 bed • 2 bath • 1237 ft²


































































































