Large corner plot bungalow with detached studio and double driveway, close to shops and transport..
Two double bedrooms and separate shower room plus separate W/C
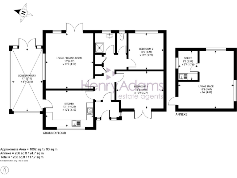
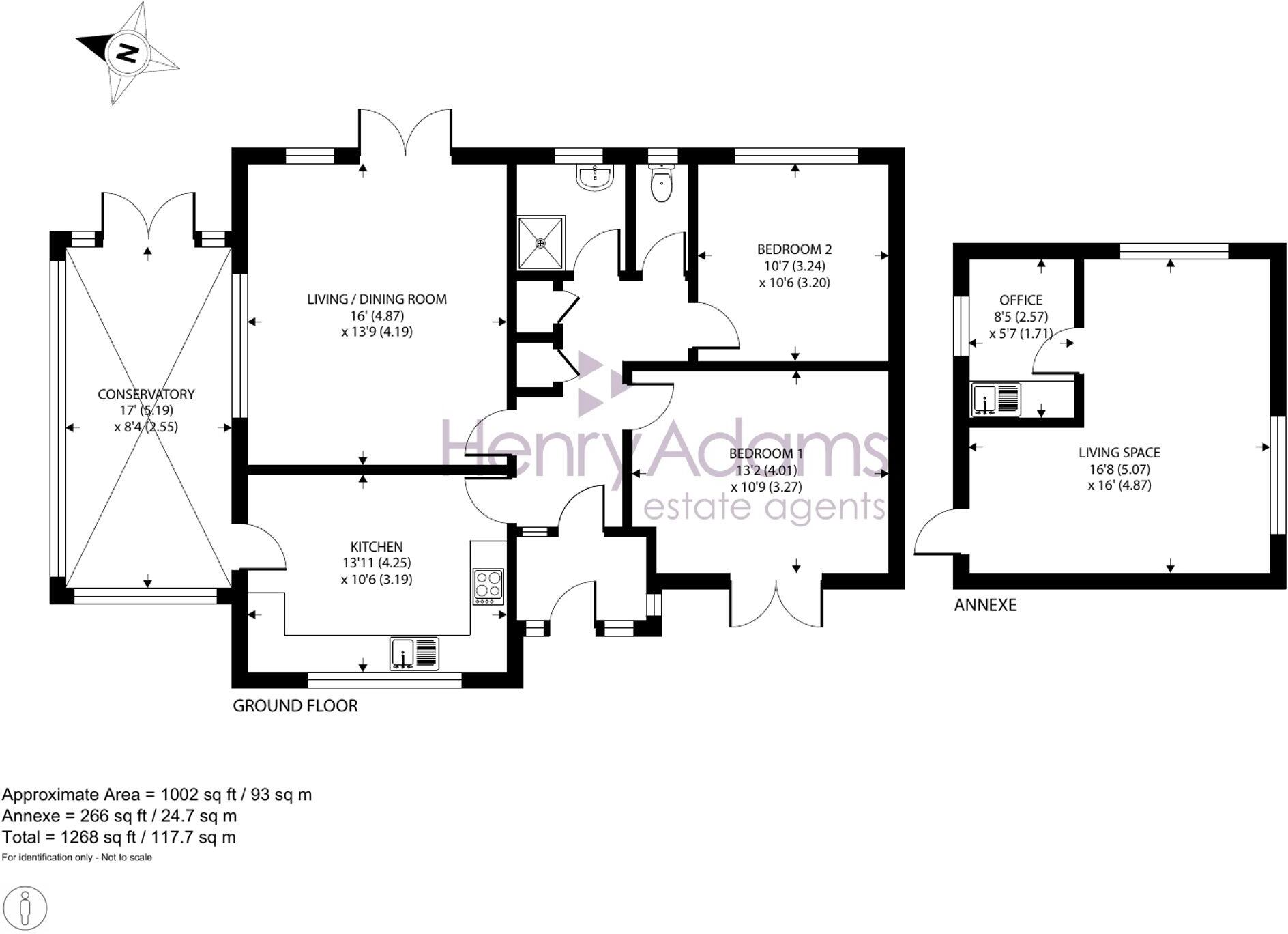
This deceptive detached bungalow offers comfortable single-floor living with useful flexible space. Two double bedrooms, a separate shower room plus a separate W/C, and a kitchen breakfast room provide practical everyday living. A conservatory adds a bright, sheltered sitting area that flows directly from the kitchen.
A former garage has been converted into a detached studio with kitchenette, seating area, small office room and boarded loft storage — ideal for a home business, guest space, or hobby studio. The property sits on a large corner plot with lawned gardens on three sides and a double driveway providing off-street parking for multiple vehicles.
Built in the late 1970s/early 1980s, the house has double glazing (installed after 2002), mains gas central heating and an EPC rating C. The layout and generous plot offer scope for extension or landscaping (subject to planning), appealing to buyers who want to add value or adapt the space to their needs.
Practical considerations: the area records higher local crime levels, and the property’s age means some modernisation may be desired by buyers seeking contemporary finishes. Its single-storey layout and proximity to the high street and bus routes make it particularly suitable for downsizers or purchasers wanting ground-floor living with easy access to amenities.
2 bedroom detached bungalow for sale in Clyde Road, Worthing BN13 3LG, BN13 — £485,000 • 2 bed • 1 bath • 1071 ft²
2 bedroom detached bungalow for sale in Grove Road, Selsey, PO20 — £465,000 • 2 bed • 2 bath • 1187 ft²
2 bedroom semi-detached bungalow for sale in Wellington Gardens, Selsey, PO20 — £290,000 • 2 bed • 1 bath • 603 ft²
3 bedroom detached bungalow for sale in The Horseshoe, Selsey, PO20 — £430,000 • 3 bed • 1 bath • 990 ft²
2 bedroom detached bungalow for sale in Churchill Avenue, Bognor Regis, PO21 — £425,000 • 2 bed • 2 bath • 1087 ft²
3 bedroom detached bungalow for sale in Gainsborough Drive, Selsey, PO20 — £375,000 • 3 bed • 1 bath • 946 ft²






















































