Well-located apartment near retail and transport, ideal for buy-to-let investors.
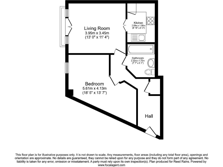
Spacious one-bedroom layout with Juliet-style balcony
This spacious one-bedroom apartment sits in the popular Fusion development, a short hop from Regent Retail Park and within easy reach of the city centre and Salford Quays. The living room opens to a Juliet-style balcony that brings light into the open plan space; the separate kitchen and generous bedroom make the layout practical for long-term tenants or sharers.
For investors the flat offers clear rental appeal in a cosmopolitan, student-heavy neighbourhood with plentiful local amenities and strong transport links. An EWS1 form (B1) is available and the home has an EPC C rating — both useful for letting and mortgage clarity. The remaining lease of around 128 years gives long-term security.
There are important cost and specification considerations: the property uses electric room heaters rather than gas central heating, and annual service charges and ground rent are notable (service charge about £3,585; ground rent about £413). The unit is leasehold; purchasers should factor these running costs into yield calculations. Overall, this is a straightforward, modern apartment suited to buy-to-let investors or first-time buyers seeking low-maintenance city living.
2 bedroom flat for sale in Fusion 2, 16 Middlewood Street, Salford, Greater Manchester, M5 — £150,000 • 2 bed • 1 bath • 549 ft²
2 bedroom apartment for sale in Fusion, 8 Middlewood Street, Salford, M5 — £290,000 • 2 bed • 2 bath • 861 ft²
2 bedroom flat for sale in Fusion 9, 2 Middlewood Street, Salford, Greater Manchester, M5 — £160,000 • 2 bed • 1 bath • 603 ft²
2 bedroom flat for sale in Middlewood Street, Salford, M5 — £150,000 • 2 bed • 1 bath • 711 ft²
2 bedroom apartment for sale in Middlewood Street, Salford, Greater Manchester, M5 — £140,000 • 2 bed • 1 bath • 549 ft²
1 bedroom apartment for sale in Wilburn Basin, Ordsall Lane, Salford, M5 — £195,000 • 1 bed • 1 bath • 483 ft²






































