**Standout Features:**
- Modern two-bedroom flat in a recently built apartment block
- Bright, open-plan living space with double glazing
- Secure entry system and allocated off-street parking
- Access to well-maintained communal gardens
- Good local amenities and transport links nearby
- Long lease with low maintenance fees
**Potential Downsides:**
- Higher crime rates in the area
- Average broadband speeds
- Basic heating system with electric room heaters
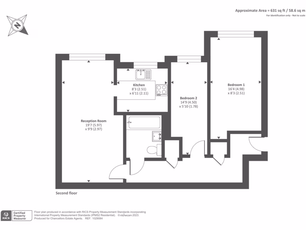
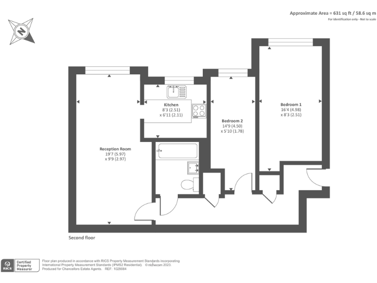
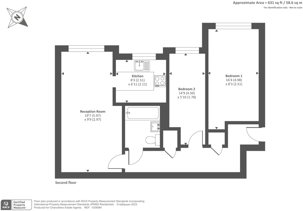
Discover this modern two-bedroom flat in the desirable Elizabeth House on Honeypot Lane, perfect for first-time buyers, downsizers, or investors seeking a reliable rental opportunity. Offering a generous reception room with abundant natural light, a separate fitted kitchen with stylish units, and two well-sized bedrooms – one with built-in wardrobes – this flat presents a functional and inviting environment. The contemporary family bathroom adds to its appeal.
Set in a vibrant and multicultural neighborhood, you'll find local shops, schools, and the Queensbury and Canons Park Underground stations just a stone's throw away, making commuting effortless. Enjoy secure entry, allocated parking, and access to charming communal gardens, ensuring a low-maintenance lifestyle in a thriving community. Don’t miss your chance to own this stylish flat; with its long lease and affordable council tax, it’s an attractive option that’s truly worth exploring amidst a fast-developing urban landscape.
 2 bedroom apartment for sale in Honeypot Lane, Stanmore, HA7 — £329,950 • 2 bed • 1 bath • 585 ft²
 2 bedroom apartment for sale in Honeypot Lane, Stanmore, HA7 — £329,950 • 2 bed • 1 bath • 585 ft² 2 bedroom apartment for sale in Elizabeth House, Honeypot Lane, Stanmore, HA7 — £325,000 • 2 bed • 1 bath • 577 ft²
 2 bedroom apartment for sale in Elizabeth House, Honeypot Lane, Stanmore, HA7 — £325,000 • 2 bed • 1 bath • 577 ft² 2 bedroom flat for sale in Scott Road, Edgware, HA8 — £299,950 • 2 bed • 2 bath • 670 ft²
 2 bedroom flat for sale in Scott Road, Edgware, HA8 — £299,950 • 2 bed • 2 bath • 670 ft² 2 bedroom flat for sale in Howard Road, Stanmore, HA7 — £375,000 • 2 bed • 2 bath • 731 ft²
 2 bedroom flat for sale in Howard Road, Stanmore, HA7 — £375,000 • 2 bed • 2 bath • 731 ft² 2 bedroom flat for sale in Honeypot Lane, Stanmore, HA7 — £325,000 • 2 bed • 1 bath • 656 ft²
 2 bedroom flat for sale in Honeypot Lane, Stanmore, HA7 — £325,000 • 2 bed • 1 bath • 656 ft² 2 bedroom maisonette for sale in Lowther Road, Stanmore, HA7 — £340,000 • 2 bed • 1 bath • 620 ft²
 2 bedroom maisonette for sale in Lowther Road, Stanmore, HA7 — £340,000 • 2 bed • 1 bath • 620 ft²






































