Substantial period home with mature gardens in a quiet village location.
Grade II Listed detached cottage with abundant historic features
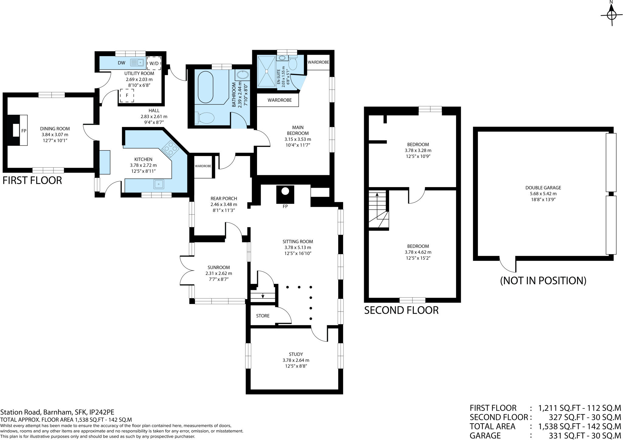
Meadow Cottage is a Grade II Listed detached period home set within about 1.25 acres of established gardens and pasture in Barnham village. The house retains strong historic character — exposed beams, bressummer beam, original fireplaces and wood floors — and offers a flexible layout with two or three bedrooms and four reception rooms arranged across multiple levels.
The plot and outbuildings are standout assets: a detached double garage, formal lawns, a pond with water feature and wild garden areas provide privacy and scope for outdoor living or small-scale horticulture. The layout includes a conservatory, study and separate breakfast and dining rooms, giving scope to reconfigure reception space to suit modern family life.
Practical considerations are important: as a Grade II Listed property, external and some internal alterations will require listed-building consent and may limit works. The house has solid brick walls (no insulation assumed), double glazing installed before 2002 and oil-fired boiler heating, so upgrading insulation, heating and windows could be needed to improve comfort and running costs. Broadband speeds are slow and mobile signal is average — a rural trade-off to consider.
This is a strong proposition for buyers seeking character and a substantial garden in a peaceful village setting, with easy road links to the A11/A14 and regional centres. It will suit those prepared to invest in sensitive upgrading or to retain original features rather than undertake wholesale modernisation.
4 bedroom detached house for sale in Mill Road, Barningham, IP31 — £500,000 • 4 bed • 1 bath • 1314 ft²
2 bedroom cottage for sale in Middlewood Green, Stowmarket, IP14 — £650,000 • 2 bed • 1 bath • 1616 ft²
3 bedroom detached house for sale in Walsham-Le-Willows, Suffolk, IP31 — £575,000 • 3 bed • 1 bath • 1500 ft²
3 bedroom house for sale in Flempton, Suffolk, IP28 — £725,000 • 3 bed • 3 bath • 2185 ft²
3 bedroom cottage for sale in Thorpe Street, Bury St Edmunds, IP22 — £450,000 • 3 bed • 2 bath • 1745 ft²
3 bedroom detached house for sale in Norton Road, Great Ashfield, IP31 — £500,000 • 3 bed • 1 bath • 1103 ft²


























































































































































