**Standout Features:**
- Convenient location in the heart of Knaphill village
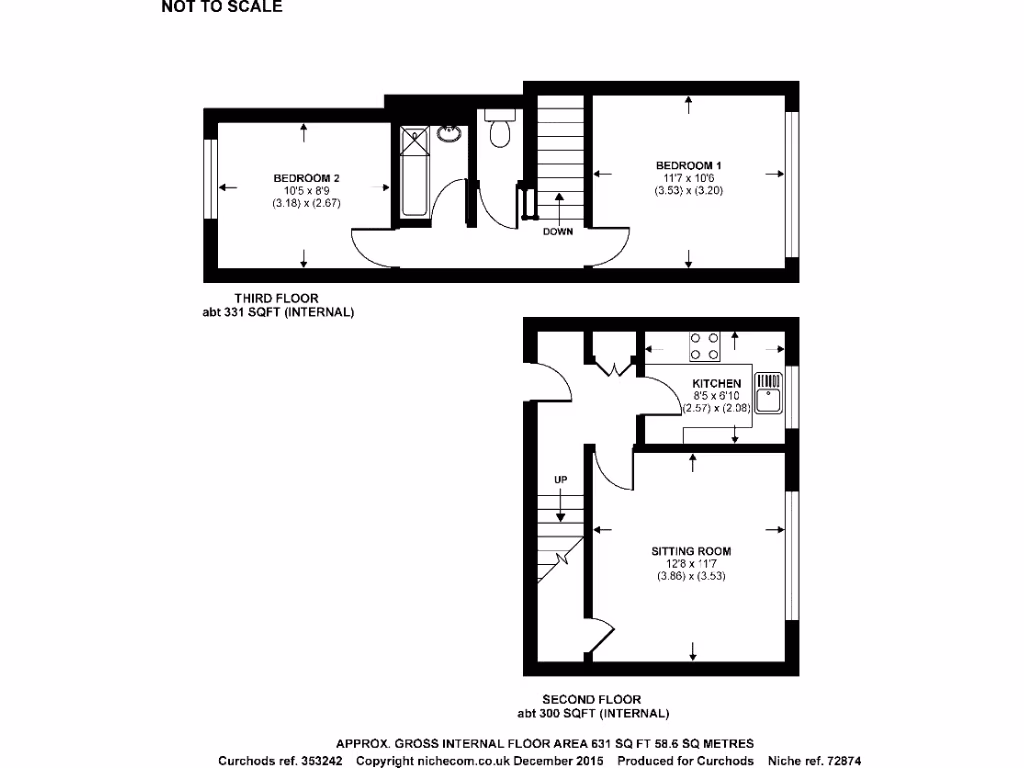
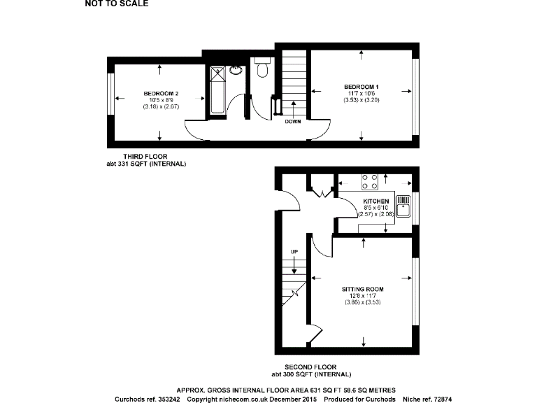
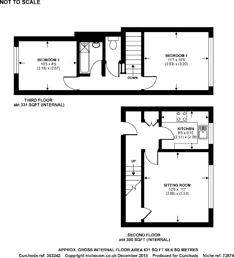
- Substantial duplex layout with two double bedrooms
- Large sitting room with open views
- Garage in a block for secure parking
- Close proximity to Woking town and station for easy commuting
**Summary:**
This substantial duplex apartment in Knaphill village offers a blend of comfort and convenience for first-time buyers or small families. Its dual-level design features a spacious living room, two generously sized bedrooms, and a modern kitchen with practical amenities, ensuring an ideal home environment. With a total size of 631 square feet, the layout maximizes space while providing a cozy atmosphere. Open views extend from the living area, enhancing the living experience.
The property also boasts a garage, which adds security for your vehicle and storage needs. Located near essential amenities, including shops, recreational facilities, and public transport links to Woking, this apartment is perfectly positioned for an active lifestyle.
While the property is leasehold with a modest service charge, it’s important to note the average state of the cavity walls, which may need insulation to improve energy efficiency. Overall, this residence offers a unique opportunity for comfortable living in a desirable location—don't miss out on making it your own!
2 bedroom maisonette for sale in Creswell Corner, Anchor Hill, GU21 — £235,000 • 2 bed • 1 bath • 636 ft²
2 bedroom flat for sale in Highclere Road, Knaphill, Woking, Surrey, GU21 — £250,000 • 2 bed • 1 bath • 420 ft²
2 bedroom flat for sale in Lorne Gardens, Knaphill, Woking, GU21 — £250,000 • 2 bed • 1 bath • 656 ft²
1 bedroom flat for sale in Royal Court, 108 Broadway, Woking, Surrey, GU21 — £140,000 • 1 bed • 1 bath • 627 ft²
2 bedroom flat for sale in Knaphill, GU21 — £259,950 • 2 bed • 1 bath • 544 ft²
1 bedroom maisonette for sale in Highclere Court, Knaphill, Woking, GU21 — £215,000 • 1 bed • 1 bath • 526 ft²










































































