**Standout Features:**
- Detached property in sought-after location
- Spacious accommodation with potential for modernization
- 100+ ft private garden with mature borders
- Off-street parking for two cars
- No onward chain, enabling a swift move
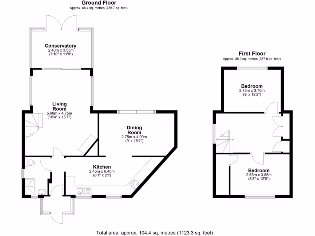
This charming two-bedroom detached house, conveniently located between Weybridge and Addlestone, is a perfect opportunity for first-time buyers or investors looking to add value. With a generous living space including an 18'4 x 16'7 living room, a large kitchen, and a conservatory leading to your expansive garden retreat, this property features substantial potential for renovation and expansion (STPP). Its private garden, extending over 100 ft, is ideal for families and garden enthusiasts alike.
Internally, the home boasts a sizeable landing with built-in storage, offering easy access to two double bedrooms and a wet room. Although in need of modernization, the property is chain-free, allowing for a seamless transition to ownership. With excellent mobile signal and fast broadband, this home is not only comfortable but primed for the demands of modern living. The proximity to Basingstoke Canal and local schools rated 'Good' by Ofsted further enhances its appeal.
Take action now to seize this rare opportunity in a highly desirable area!
2 bedroom detached house for sale in Addlestone, Surrey, KT15 — £400,000 • 2 bed • 1 bath • 495 ft²
3 bedroom detached house for sale in Addlestone, Surrey, KT15 — £499,950 • 3 bed • 2 bath • 1222 ft²
3 bedroom detached house for sale in Crouch Oak Lane, Addlestone, KT15 — £585,000 • 3 bed • 1 bath • 1401 ft²
2 bedroom detached house for sale in Addlestone, Surrey, KT15 — £459,950 • 2 bed • 1 bath • 701 ft²
3 bedroom detached house for sale in Alexandra Road, Addlestone, KT15 — £650,000 • 3 bed • 2 bath • 1419 ft²
2 bedroom detached house for sale in Addlestone, Surrey, KT15 — £439,950 • 2 bed • 2 bath • 842 ft²


























































































