Chain-free house with planning consent to extend and excellent school links.
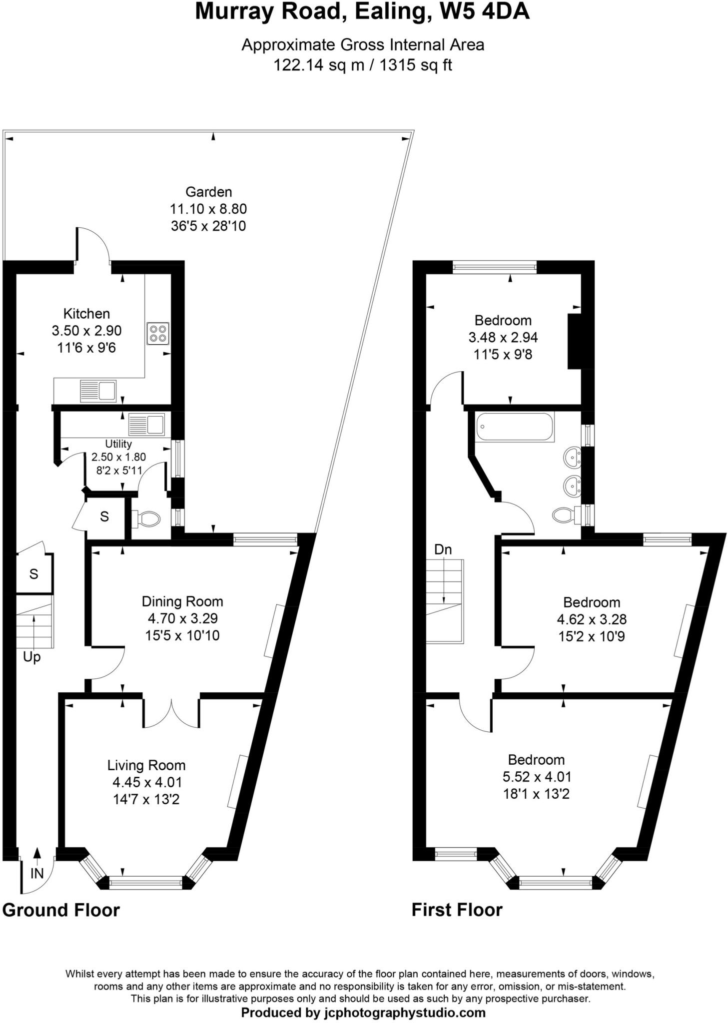
Approx. 1,315 sq ft across two storeys, three double bedrooms
This three-bedroom period house in central South Ealing offers generous living space (approx. 1,315 sq ft) and practical family layout. Two reception rooms, a kitchen with utility, downstairs WC and a private rear garden suit everyday family life and entertaining.
Planning permission is already granted to extend the ground floor and loft, giving clear scope to increase living space and add value. The property is sold chain free and is well placed for excellent local schools (including Ealing Fields and Gunnersbury) and strong transport links on the Piccadilly Line and Brentford main line.
Buyers should note a few practical points: the property has solid brick walls with no assumed cavity insulation, double glazing fitted before 2002, and an EPC rating of D. Council Tax Band E applies. These items are straightforward to address during renovation but are material when budgeting for works and running costs.
Overall this is a well-located family home with immediate liveability and clear scope for extension and improvement — ideal for families seeking space now and growth potential for the future.
3 bedroom end of terrace house for sale in Murray Road, Ealing, W5 — £799,950 • 3 bed • 1 bath • 1335 ft²
3 bedroom house for sale in Murray Terrace, Ealing, W5 — £799,950 • 3 bed • 2 bath • 936 ft²
4 bedroom end of terrace house for sale in Murray Road, Ealing W5 — £1,200,000 • 4 bed • 2 bath • 1781 ft²
2 bedroom maisonette for sale in Murray Road, Ealing, W5 — £485,000 • 2 bed • 1 bath • 732 ft²
3 bedroom flat for sale in Murray Road, Ealing, W5 — £625,000 • 3 bed • 2 bath • 1111 ft²
3 bedroom house for sale in Convent Gardens, Ealing, W5 — £825,000 • 3 bed • 2 bath • 1010 ft²






































