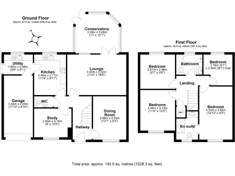
**Key Features:**
- **Modern Detached Property**: Four spacious bedrooms, approximately 1528 sq. ft. of living space.
- **Well-presented**: Versatile layout with a study, lounge with conservatory access, separate dining room, and an integrated kitchen.
- **Enclosed Garden**: Generous outdoor space with patio, lawn, decking area, and garden room.
- **Excellent Parking**: Driveway and garage with ample parking space.
- **Location**: Sought-after residential area near schools, shops, and public transport.
Nestled in a desirable location, this beautifully presented four-bedroom detached home offers a perfect blend of modernity and space. Spanning approximately 1528 sq. ft., the well-designed layout includes a welcoming hallway, a dedicated study, and a lounge that opens onto a bright conservatory, creating an inviting ambiance for family gatherings. The integrated kitchen is stylish and functional, paired with a separate utility room and garage access for convenience.
Upstairs, the main bedroom features an en-suite shower room, complemented by three additional well-sized bedrooms and a family bathroom. The property is equipped with gas central heating and double glazing, ensuring comfort throughout the year.
Outside, enjoy a sizeable driveway with ample parking, side-gated access, and a generous rear garden perfect for entertaining or relaxation. This property is ideal for families seeking comfort, space, and tranquility. With good local schools and amenities nearby and a fast broadband connection, it holds excellent potential for both comfortable living and future appreciation. Don't miss the opportunity to make this your dream family home!
4 bedroom detached house for sale in Hedingham Road Leegomery TF1 6ZT, TF1 — £440,000 • 4 bed • 3 bath • 1910 ft²
4 bedroom detached house for sale in Porchester Close, Leegomery, Telford, Shropshire, TF1 — £365,000 • 4 bed • 2 bath • 1131 ft²
4 bedroom detached house for sale in Warwick Way, Leegomery, TF1 — £339,950 • 4 bed • 1 bath • 1211 ft²
4 bedroom detached house for sale in Cavell Close, Apley, Telford, TF1 — £340,000 • 4 bed • 2 bath • 1289 ft²
4 bedroom detached house for sale in Harley Close, Wellington, Telford, TF1 — £395,000 • 4 bed • 2 bath • 1743 ft²
4 bedroom detached house for sale in Meadow Dale Drive, Admaston, TF5 — £519,000 • 4 bed • 2 bath • 1843 ft²


































































































































































































































































