Compact three-bedroom duplex with secure parking and balcony in central Manchester.
Three-bedroom duplex with master en suite and balcony
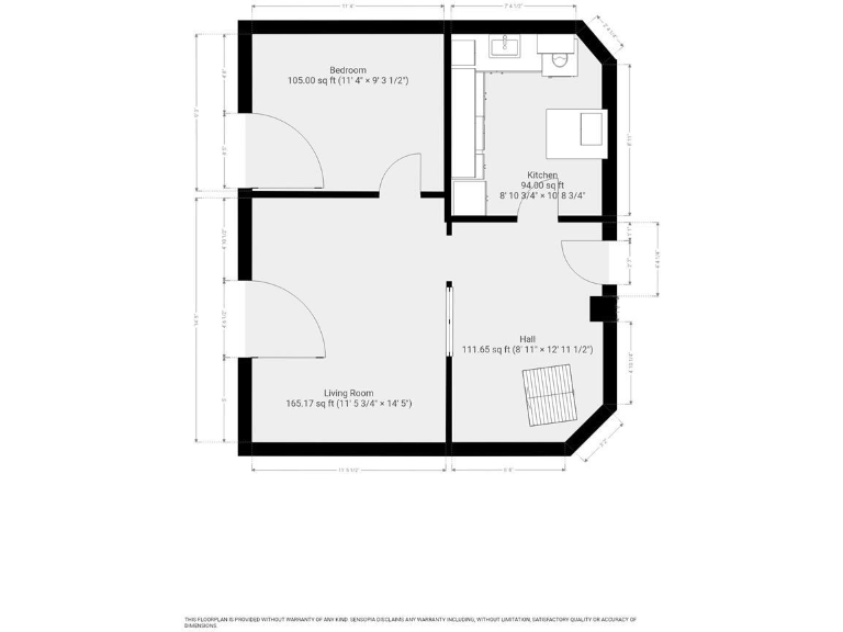
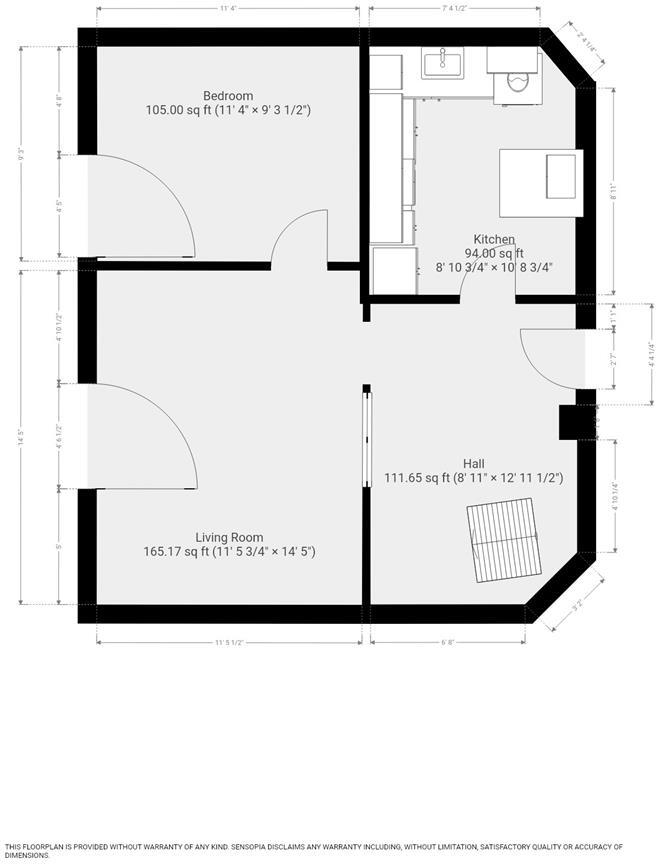
Set over two levels in central Manchester, this three-bedroom duplex offers city-centre living with secure underground parking and private balcony views. The layout places an open-plan living/kitchen and a ground-floor bedroom to one level, with two further bedrooms upstairs, including a master with en suite. Vacant possession makes it ready for immediate occupation.
At 491 sq ft the apartment is compact for three bedrooms and will suit buyers prioritising location over generous internal space. Heating is by electric storage heaters and the property has double glazing; buyers should note ongoing running costs may be higher than gas-heated homes. The building is modern (constructed c.1996–2002) with a long lease (974 years) and an average service charge of £2,371 per year.
The setting is a vibrant, multicultural student and city neighbourhood with excellent transport, fast broadband and plentiful amenities on the doorstep. That brings convenience and an active evening economy but can also mean more street activity and local bustle than suburban locations.
This apartment is aimed at first-time buyers or city professionals seeking a central base with parking and strong connectivity. It also has straightforward rental potential for investors familiar with inner‑city student and professional demand, though its compact size and service charges should be factored into affordability and yield calculations.
2 bedroom apartment for sale in Bauhaus, 2 Little John Street, Manchester, M3 — £450,000 • 2 bed • 3 bath • 1040 ft²
2 bedroom duplex for sale in Whitworth Street, Manchester, M1 — £385,000 • 2 bed • 2 bath • 1600 ft²
2 bedroom apartment for sale in The Edge, Clowes Street, Salford, M3 — £519,995 • 2 bed • 3 bath • 1533 ft²
2 bedroom apartment for sale in Clowes Street, Salford, M3 — £519,000 • 2 bed • 3 bath • 1534 ft²
3 bedroom duplex for sale in 50 Bengal Street, Manchester, M4 — £495,000 • 3 bed • 2 bath • 1180 ft²
2 bedroom flat for sale in Sorting Office, 7 Mirabel Street, Manchester, M3 1NJ, M3 — £265,000 • 2 bed • 2 bath • 840 ft²






























































































































































































































